Wonen aan het water | 4 kamerwoning | woonoppervlak 126 m² | ruime tuin | eigen oprit
Wat een heerlijk licht huis op een prachtig plekje. Met 126 m² woonoppervlakte, drie slaapkamers met de mogelijkheid tot het creëren van een vierde, een diepe achtertuin én een ligging aan het water is dit een heerlijke plek voor wie ruimte zoekt in een rustige, kindvriendelijke woonomgeving.
Welkom in Molenvliet. Een rustige groene wijk waar kinderen veilig op straat kunnen spelen In de directe omgeving vind je diverse basisscholen, kinderopvang en sportverenigingen zoals voetbal, tennis en hockey. Met parken, speeltuinen en wandelroutes om de hoek is dit een fijne plek voor jong en oud. Je zit hier ook zeer gunstig ten opzichte van de uitvalswegen A15 en A29, maar ook met het openbaar vervoer is bijvoorbeeld Rotterdam Centrum eenvoudig en snel te bereiken.
Van Kronenburgvliet 32
Je parkeert de auto op de oprit en zet de fiets die nog buiten is blijven staan in de schuur aan de voorzijde. Dan loop je achter de voordeur de hal binnen. Een ruime hal waar je je jas ophangt en al dan niet je schoenen in het rek zet. Dan loop je de woonkamer in. Die is heerlijk ruim, de woonkamer is 1,76 meter uitgebouwd, maar ook de mooie lichte marmeren vloer en de grote pui aan de achterzijde geven een heel ruim effect. De woonkamer is verdeeld in een gezellige eethoek en een hele ruime zithoek.
Het voorjaar zorgt er alweer voor dat de grote schuifpui al snel weer open staat zodat de woonkamer met ruim 52 m2 verlengd wordt. De tuin is echt het verlengstuk van de woonkamer, waarschijnlijk doordat de tuintegels lijkt op de vloer binnen. Een heerlijke tuin op het zuiden en aan het water. Er is voldoende plek voor een paar ligstoelen, een loungeset en een gezellige buitentafel om lekker lang te tafelen.
Wonen aan het water blijft toch iets bijzonders. Het geeft altijd een extra dimensie en een bepaalde vrijheid.
Terug in de woonkamer lopen we langs de trapkast waar zoals bij de meeste mensen de stofzuiger staat en de nodige proviand. Daarnaast treffen we daar de verdeler van de vloerverwarming. De marmeren vloer is een perfecte geleider voor de vloerverwarming en is tevens lekker koel in de zomer! Aan de voorzijde lopen we de half-open keuken in. De afscheidingsmuur is eigenlijk wel fijn, want daar past mooi de eettafel aan de andere kant tegenaan! De keuken is voorzien van diverse inbouwapparatuur zoals de vaatwasmachine, koelkast, vriezer, combi-oven en de ingebouwde 5-pits gaskookplaat met afzuigkap erboven. In het natuurstenen keukenblad zit een dubbele spoelbak met mengkraan en zeepdispenser verwerkt. In de laden en kastjes is veel bergruimte en door het grote raam komt veel werklicht binnen en kijk je mooi vrij de straat in.
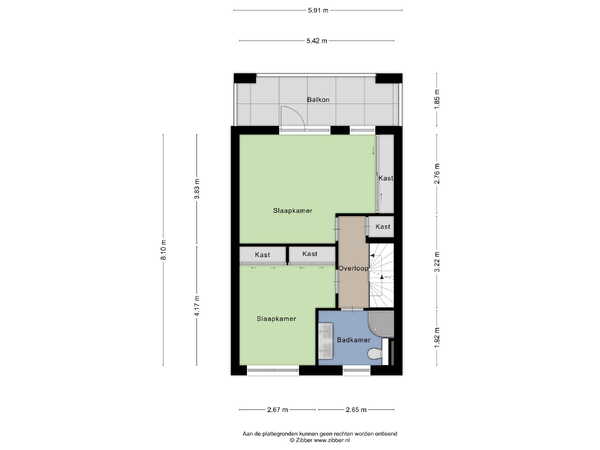
Terug in de hal treffen we het toilet en de trap naar boven. Op de eerste verdieping hebben we toegang tot een tweetal slaapkamers van ca. 20 en 14 m2. De ouderslaapkamer aan de achterzijde heeft toegang tot het eigen balkon van ca. 10 m2 op het zuiden. Een fijne plek om even wakker te worden, maar ook een fijne plek om in de zomer je was te drogen. In de slaapkamer is een grote ingebouwde kledingkast met spiegeldeuren die de ruimte optisch nog groter maken. Mocht je op zoek zijn naar een extra kamer is de hoofdslaapkamer te verdelen zodat je een extra slaap- of werkkamer creëert. De slaapkamer aan de voorzijde is ook een fijne lichte kamer die tevens voorzien is van een grote ingebouwde kledingkast van ca. 3 meter breed.
De badkamer bevindt zich aan de voorzijde is voorzien van een douchecabine, een grote dubbele wastafel met wastafelmeubel met twee mengkranen en een grote spiegel. Daarnaast treffen we hier het tweede toilet en een radiator waar je de handdoeken kunt drogen. Door het bovenlicht komt fijn daglicht binnen en de badkamer is voorzien van mechanische ventilatie.
Op de tweede verdieping komen we aan op de overloop waar zich de aansluitingen bevinden voor de wasmachine en droger. Daarnaast treffen we de CV-ketel en de omvormer van de 7 zonnepanelen. Tevens heb je vanaf de overloop toegang tot de vliering met een vloeroppervlak van ca. 15 m2. Een mooie plek voor de kerstboom. Dan lopen we de derde slaapkamer in, die is met ruim 18 m2 groot en daarin is de ruimte onder de schuine kap vanaf 1,50 meter niet meegerekend. Met de twee dakkapellen is dit een hele fijne inspirerend lichte kamer met een grote inbouwkast, plek voor een tweepersoonsbed, kaptafel en/of bureautje. Die ene kamer waar ieder kind van droomt!
Wat een heerlijk leefhuis, de energie van licht en water maken een hele fijne combi voor optimaal woongenot.
Nieuwsgierig geworden? Wacht niet met het maken van een afspraak want je zult waarschijnlijk niet de enige zijn bij wie dit plekje in de smaak valt!
Bijzonderheden:
* Bouwjaar 1986
* Woonoppervlak ca. 126 m2
* Perceel 149 m2
* Energielabel C
* Geheel voorzien van dubbele beglazing
* Verwarming en warm water middels een CV-combiketel (Nefit, bouwjaar 2016)
* 7 zonnepanelen
* De gehele begane grond is voorzien van vloerverwarming
* De woning beschikt over een eigen oprit
* 3 ruime slaapkamers, mogelijkheid tot het creëren van een vierde slaapkamer
* 2 dakkapellen
* Ruime tuin op het zuiden én aan het water
* Mechanische ventilatie in de badkamer
* Oplevering bij voorkeur eind augustus
RE/MAX, it’s the experience!
Ons advies bij het kopen van jouw nieuwe woning? Neem jouw eigen aankoopmakelaar mee!