Ontdek deze fraaie hoekwoning in de populaire wijk Vrijheidsakker, waar comfort en gemak centraal staan. Gelegen nabij basisscholen, een nabijgelegen winkelcentrum en goede vervoersverbindingen, is dit een ideale woning voor gezinnen en mensen die zoeken naar een praktische en sfeervolle woonplek. De woning onderscheidt zich door zijn goed onderhouden staat, moderne voorzieningen en ruime serre die het gehele jaar door voor extra lichtinval en comfort zorgt. De zonnige oostgerichte tuin biedt een gezellige buitenruimte met sierbestrating en veel privacy. Met drie slaapkamers, een moderne keuken en badkamer, en volop opbergruimte, combineert deze woning functionaliteit met een prettige leefomgeving. Of u nu op zoek bent naar een comfortabel gezinshuis of een woning met veel potentie, deze woning past perfect bij uw wensen!
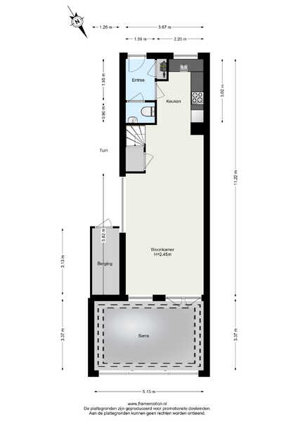
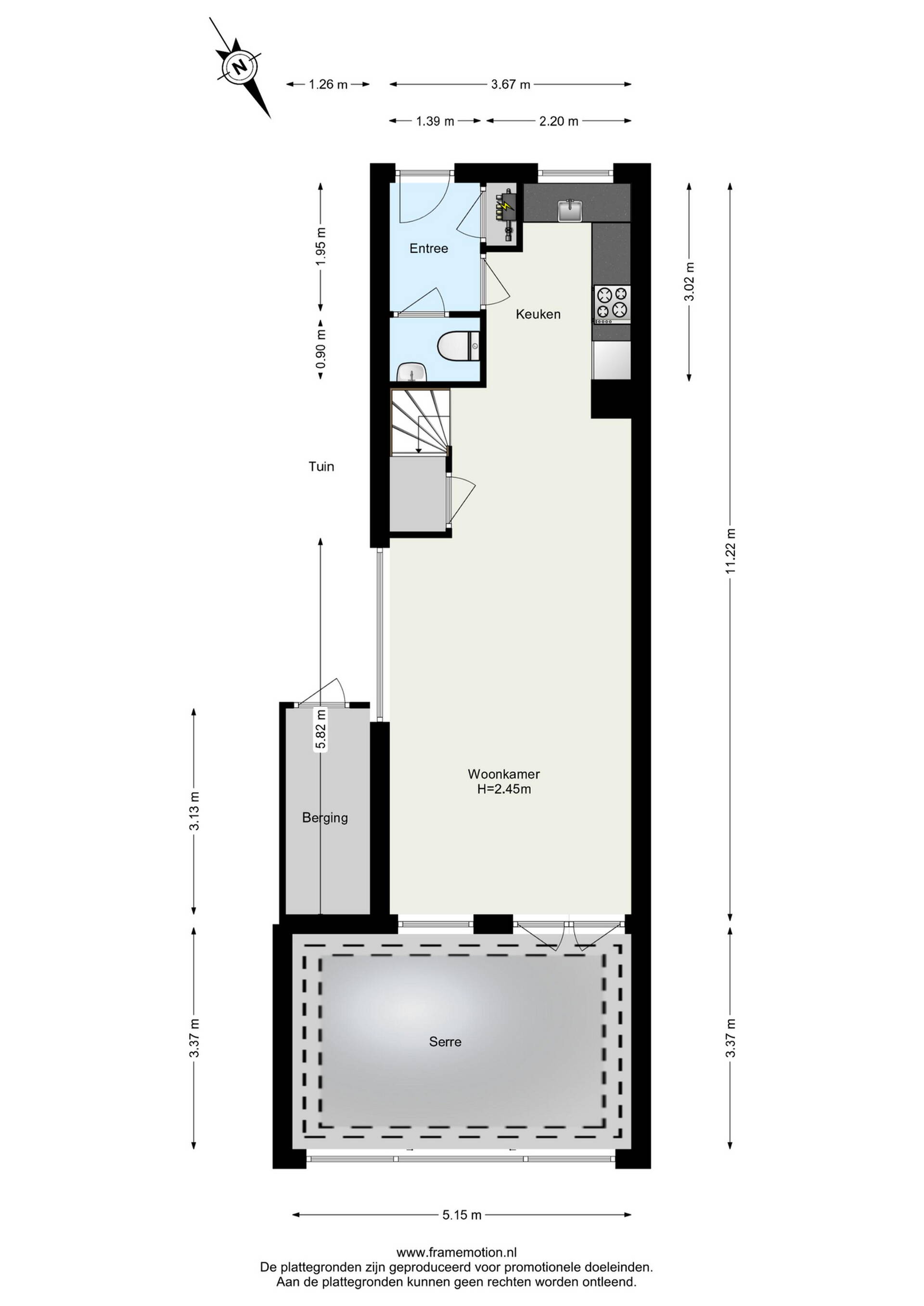
Indeling met indicatieve maten
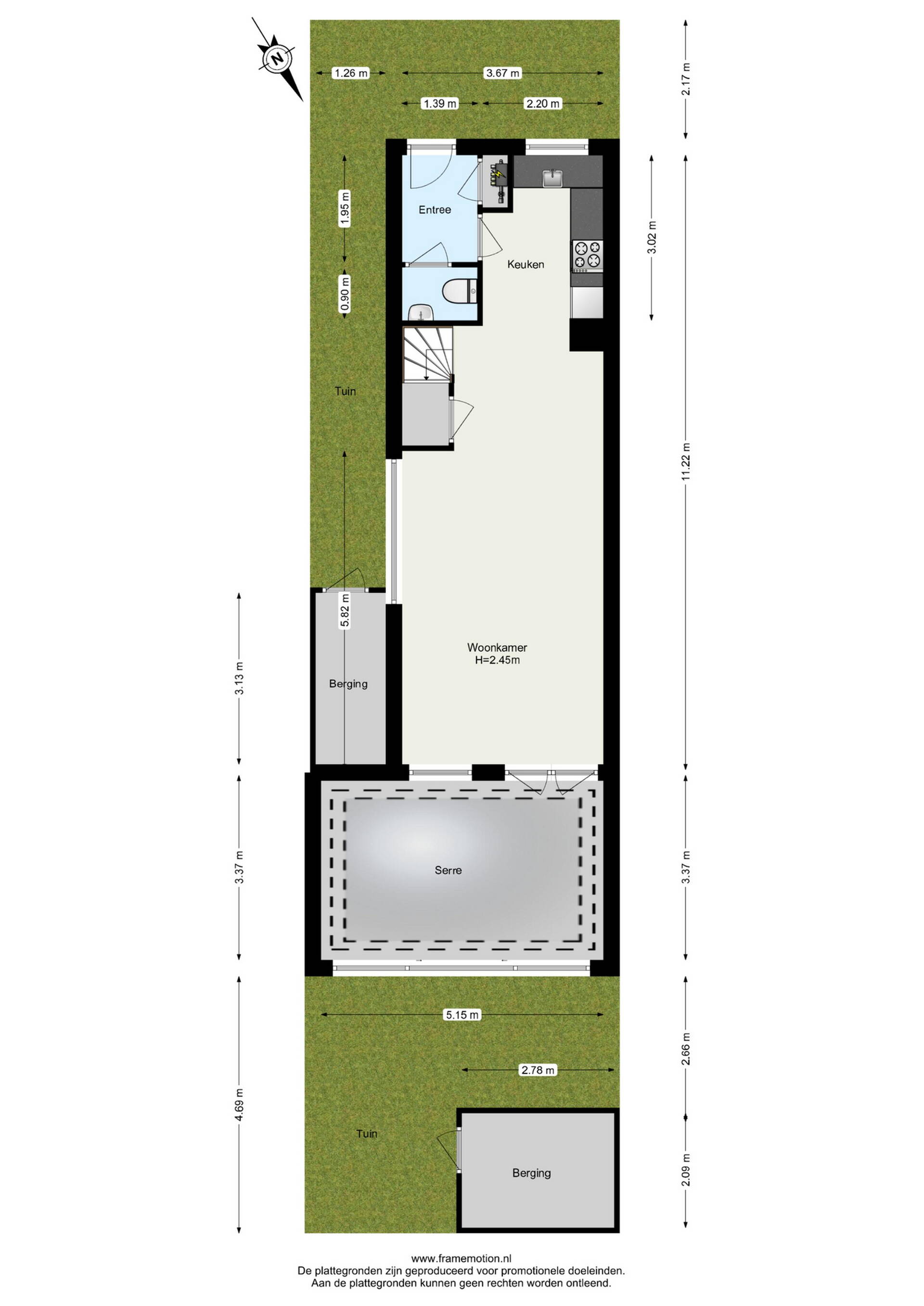
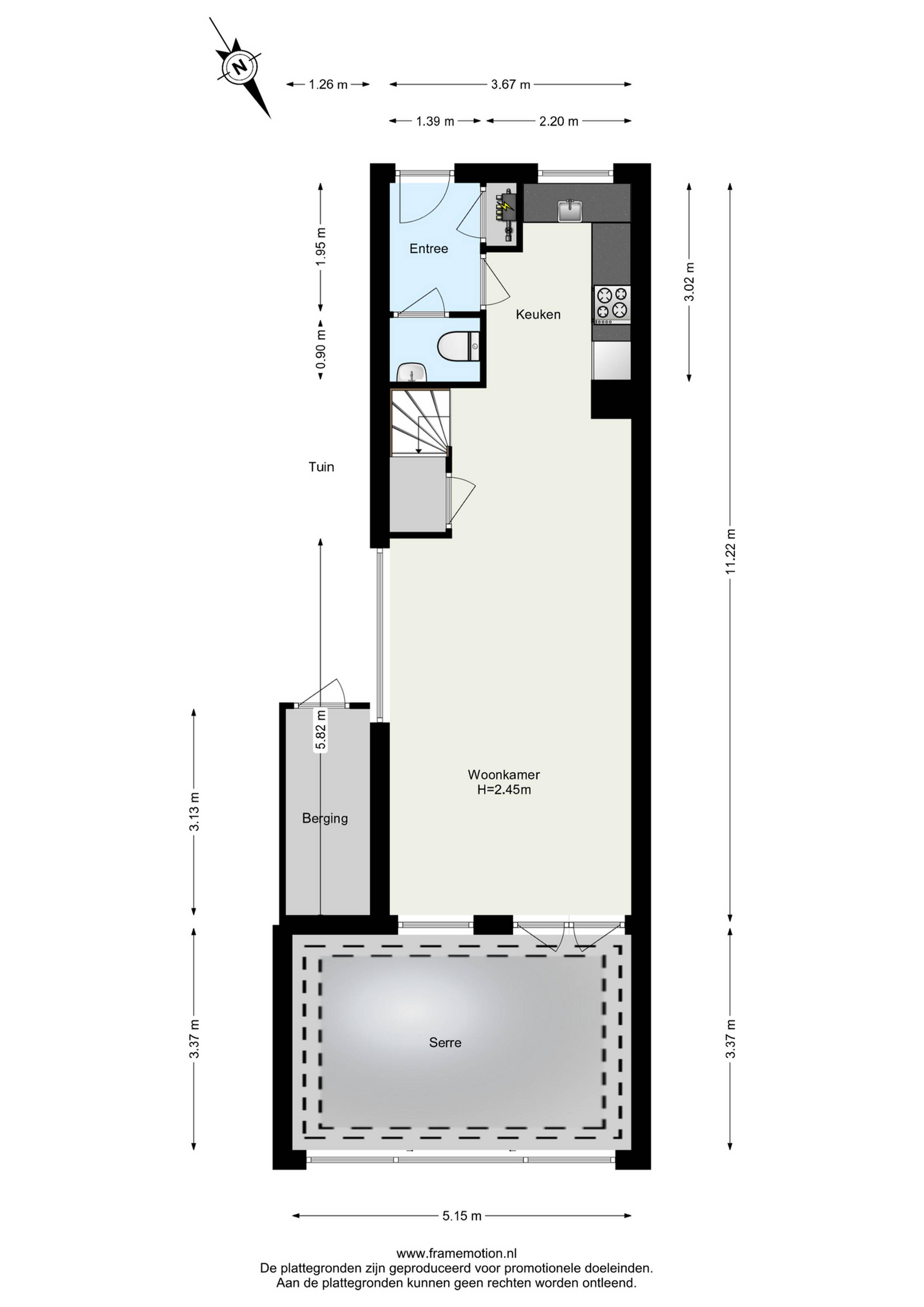
BEGANE GROND:
Bij binnenkomst in de hal met garderobe en toilet voelt u meteen de fijne sfeer van deze woning. De lichte PVC-vloer leidt u naar de open keuken en woonkamer. De moderne keuken (ca. 7 m²) in licht grijs met donkergrijs werkblad is volledig uitgerust met een combi-oven, inductiekookplaat, vaatwasser en koelkast. De royale woonkamer (ca. 29 m²) heeft grote ramen en openslaande deuren naar de serre, die zich over de gehele breedte van de tuin bevindt. De aluminium serre (ca. 17 m²) is voorzien van inbouwspots en openschuifdeuren, waardoor u het hele jaar door geniet van het buitengevoel. De tuin ligt op het oosten, met sierbestrating, houten schuttingen, een houten berging en een poort naar het achterpad. Aan de zijkant vindt u een separate bergruimte, ideaal voor bijvoorbeeld fietsen.
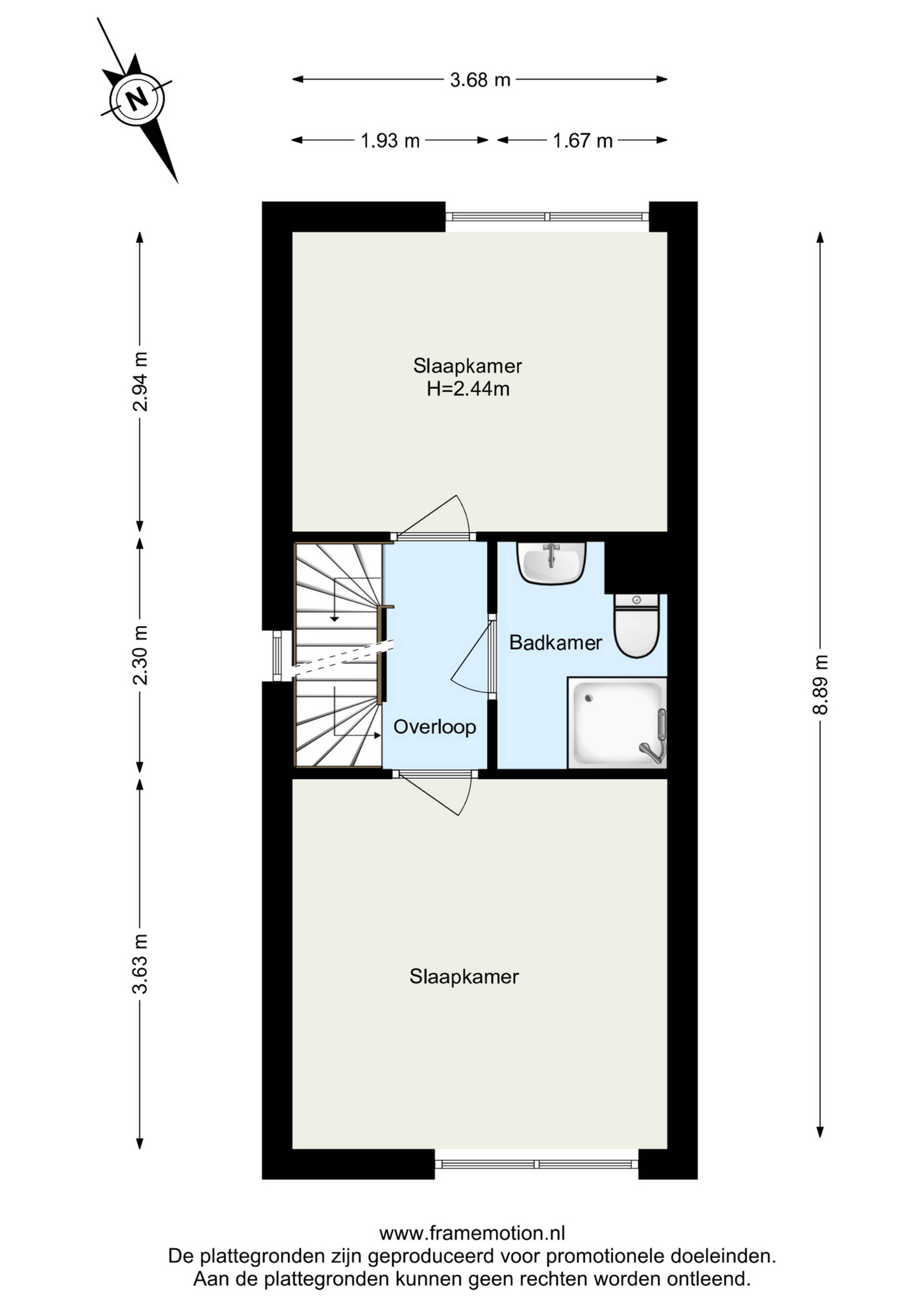
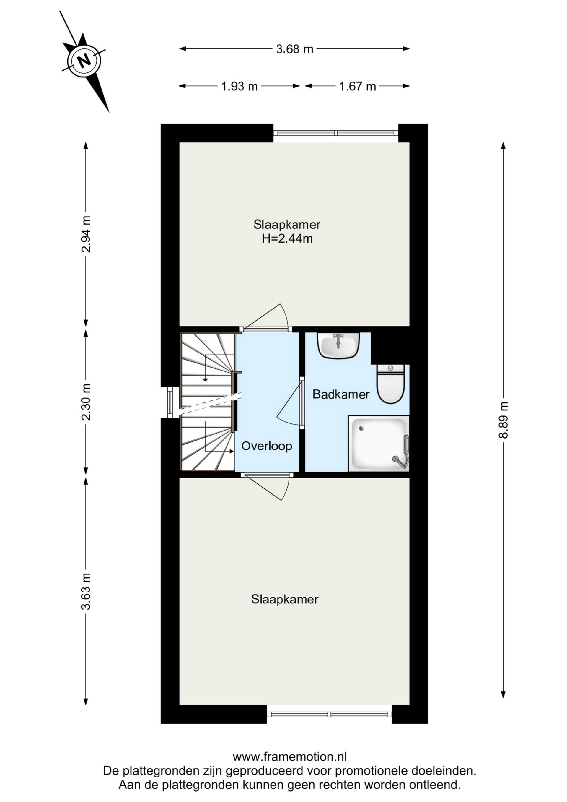
EERSTE VERDIEPING:
Op de eerste verdieping bevindt zich een ruime overloop die toegang biedt tot twee slaapkamers en de moderne badkamer. De slaapkamers zijn voorzien van laminaatvloeren en horren voor de ramen, waardoor u optimaal ventilatie en comfort ervaart.
Slaapkamer 1 (ca. 11 m²) gelegen aan de voorzijde van de woning
Slaapkamer 2 (ca. 13 m²) gelegen aan de achterzijde van de woning
De volledig betegelde badkamer (ca. 4 m²) in wit en grijs beschikt over een douchecabine met glazen wand, hangend toilet en een wastafelmeubel met bergkast, afgewerkt in een stijlvolle en praktische stijl.
TWEEDE VERDIEPING:
De tweede verdieping biedt een ruime overloop met aansluitingen voor wasmachine en droger, en de CV-opstelling. Hier vindt u ook voldoende ruimte voor bijvoorbeeld een werkplek of extra opslag en een Velux raam met hor voor extra lichtinval. De derde slaapkamer (ca. 11 m²) is voorzien van een dakkapel met hor, waardoor deze verrassend licht en ruim is. Dankzij de slimme indeling kunt u deze extra kamer naar wens gebruiken als slaapkamer, kantoor of hobbyruimte.
- Ruime hoekwoning met zijtuin en serre over de volledige breedte van de tuin, ideaal voor genieten van buiten en binnen
- Moderne keuken in lichte tinten, compleet uitgerust met oven, inductiekookplaat, vaatwasser en koelkast
- Drie slaapkamers, inclusief een royale kamer met dakkapel en extra werkruimte op de tweede verdieping
- Ruime serre met openschuifdeuren, voorzien van inbouwspots en vooral veel natuurlijk licht
- Gelegen in de geliefde wijk Vrijheidsakker, dichtbij scholen, winkelcentrum Carnisse Veste en diverse sportverenigingen
- Goed onderhouden woning met houten bergingen in de achtertuin en zijtuin, en een oostgerichte tuin met sierbestrating
- Uitstekende bereikbaarheid met snelwegen, openbaar vervoer en uitvalswegen op korte afstand
Makelaar: Marco Bos