Welkom bij Van Huessenleede 8 in het geliefde Barendrecht, een woning waar moderne luxe en huiselijke warmte elkaar ontmoeten. Zodra u de voordeur opent, wordt u verwelkomd door een gevoel van rust, ruimte en verfijning. Dit is geen huis om enkel in te wonen, maar om van te genieten! Een plek waar elk detail met zorg is ontworpen om optimaal wooncomfort te bieden.
De woning ligt in de rustige en kindvriendelijke woonwijk Ter Leede, omgeven door groen en met waterpartijen in de nabije omgeving. Hier ervaart u de gemoedelijke sfeer van een woonwijk waar buren elkaar nog groeten, terwijl u toch profiteert van alle voorzieningen van Barendrecht. Scholen, supermarkten, sportclubs en gezellige eetgelegenheden liggen op korte afstand.
Vanuit de Van Huessenleede bereikt u in enkele minuten de uitvalswegen richting Rotterdam, Ridderkerk en de A29. Ook het openbaar vervoer is uitstekend geregeld, met de bus of trein staat u binnen een kwartier in hartje Rotterdam. De wijk zelf is autoluw, waardoor rust en veiligheid vooropstaan.
Deze woning is een comfortabele, goed onderhouden woning waar ieder gezinslid zijn eigen plek vindt. Het huis voelt ruim, licht en praktisch ingedeeld, met oog voor comfort en een prettige woonsfeer.
Indeling met indicatieve maten
BEGANE GROND:
Bij binnenkomst in de ruime hal wordt direct de toon gezet. Een eikenhouten vloer, strakke wandafwerking en een gevoel van openheid voeren de boventoon. Vanuit de hal bereikt u het moderne toilet, de meterkast, de trap naar boven en de sfeervolle woonkamer.
De open keuken aan de voorzijde is een droom voor iedere kookliefhebber. Strakke lijnen, moderne apparatuur zoals een koelkast, aparte vriezer, 4 pits inductiekookplaat met RVS afzuigkap met koolstoffilters, 2 combi magnetrons, een vaatwasser en een Quooker zorgen ervoor dat koken hier een plezier wordt. Zwart stalen schuifdeuren scheiden de keuken subtiel van de woonkamer, waardoor het licht vrij spel heeft maar de ruimtes toch een eigen sfeer behouden. De lichte kleurstelling, gecombineerd met warme accenten, maakt dit de ideale plek om samen te ontbijten met uitzicht op de rustige straat.
De woonkamer is een oase van licht dankzij de grote raampartijen, 3 dakkoepels en dubbele tuindeuren die toegang bieden tot de achtertuin. Hier vloeien binnen en buiten naadloos in elkaar over. De ruimte ademt warmte en gezelligheid, perfect voor lange avonden met familie of vrienden. De afwerking is van hoog niveau, de warme houten vloer loopt door de gehele ruimte, terwijl de wanden strak zijn gestuukt in een zachte, neutrale tint die het daglicht prachtig weerkaatst. In de woonkamer bevindt zich ook de trapkast met extra bergruimte. Tevens heeft u vanuit deze kast via een deur toegang naar de garage die dienst kan doen als berging, kantoor aan huis of hobbyruimte.
ACHTERTUIN:
De door een tuinarchitect ontworpen achtertuin is een uitnodigende buitenruimte waar u in alle rust kunt ontspannen. Dankzij de ideale zonligging op het westen geniet u de hele dag van licht en warmte. Achter in de tuin bevindt zich een overkapping (2,61 m x 3,57 m) uitgevoerd in Douglas hout met Zweeds rabbat, perfect voor een gezellige loungehoek of een buitenkeuken. Hier kunt u 's avonds genieten van een goed glas wijn terwijl de zon langzaam ondergaat. De tuin is onderhoudsvriendelijk aangelegd met een perfecte combinatie van groen en bestrating, ideaal voor zowel ontspanning als gezelligheid!
EERSTE VERDIEPING:
Op de eerste verdieping vindt u drie ruime slaapkamers, elk met een eigen karakter. De grote hoofdslaapkamer ligt aan de tuinzijde en baadt in natuurlijk licht, een heerlijke plek om de dag ontspannen te beginnen. De tweede en derde slaapkamer zijn ideaal als kinderkamer, logeerplek of werkkamer.
De badkamer is stijlvol ingericht met een moderne douche, dubbel wastafelmeubel en een frisse, tijdloze uitstraling. Hier ervaart u het comfort van een wellnessruimte in uw eigen huis!
TWEEDE VERDIEPING:
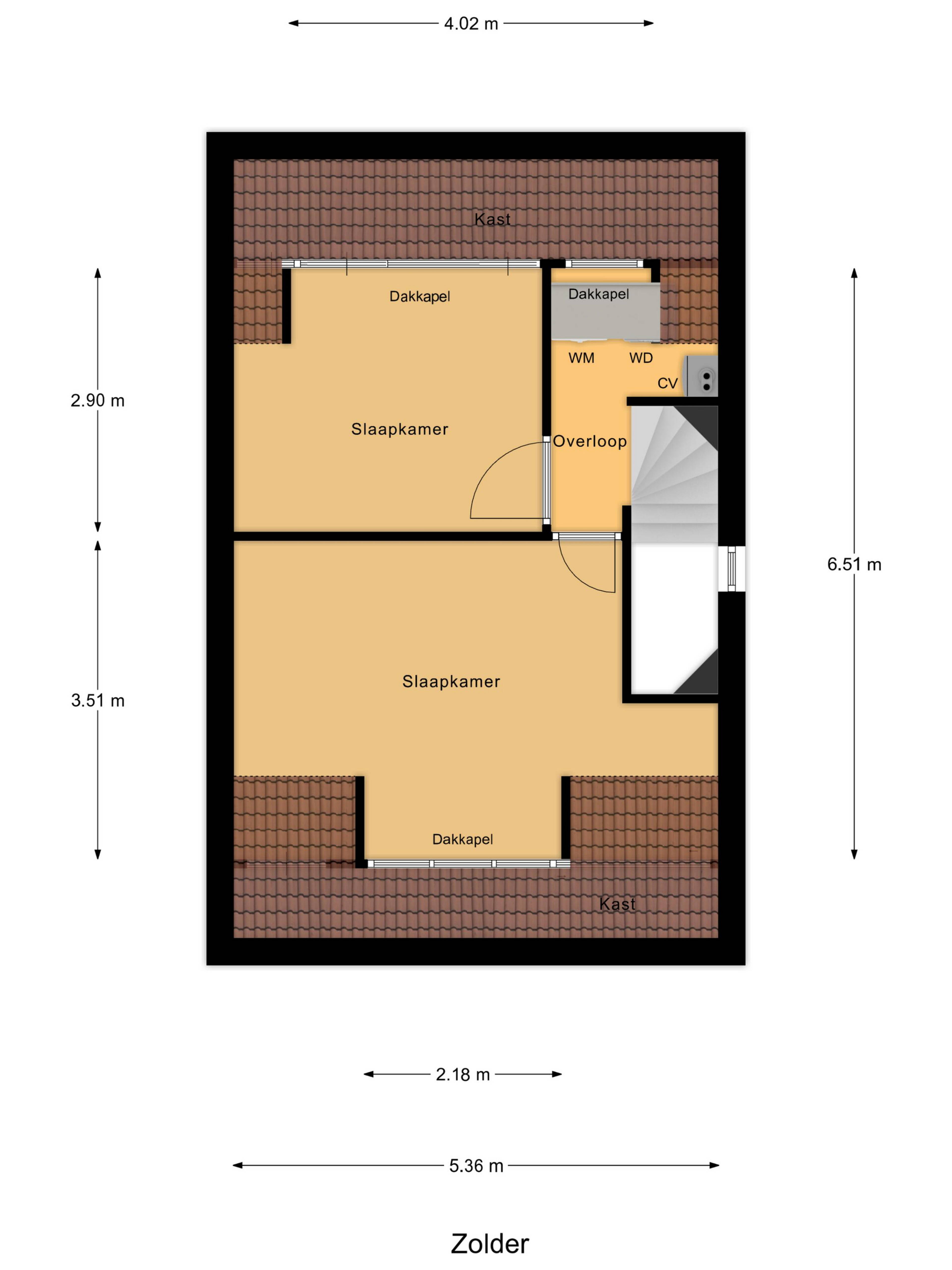
De vaste trap leidt naar de zolderverdieping, waar nog eens twee ruime kamers zijn gecreëerd. Dankzij de dakkapellen is de ruimte optimaal benut. Deze verdieping leent zich perfect voor een master bedroom, werkruimte of een gastenverblijf.
Op de overloop bevinden zich de aansluitingen voor de wasmachine en de droger en de opstelling voor de CV ketel, MV installatie en de omvormer voor de zonnepanelen. De ruimte is praktisch ingedeeld met hoogwaardige materialen en een nette afwerking, waardoor ook de functionele delen van het huis een verzorgde uitstraling hebben.
- Perceel met zonnige achtertuin en overkapping
- Vijf slaapkamers, verdeeld over twee verdiepingen
- 3 Slaapkamers uitgevoerd met airco
- Ruime, lichte woonkamer met openslaande deuren
- Moderne open keuken met luxe inbouwapparatuur
- Twee elektrisch bedienbare zonneschermen aan de achterzijde
- Garage met extra bergruimte
- Strakke en complete badkamer
- Rustige ligging nabij voorzieningen en uitvalswegen
- Volledig instapklare woning
Makelaar: Marco Bos