In een van de meest geliefde woonwijken van Barendrecht bieden wij u deze sfeervolle en perfect onderhouden twee-onder-een-kapwoning met garage aan. De woning combineert een moderne afwerking, ruimte, en praktisch wooncomfort met een groene, rustige ligging vlak bij alle voorzieningen.
De woning beschikt over een eigen oprit voor twee auto’s, een zonnige tuin op het zuiden, drie slaapkamers (met de mogelijkheid tot meer), en een speelse indeling met prachtige hoge zwarte paneeldeuren die zorgen voor een moderne uitstraling en veel lichtinval.
De omgeving ademt rust en ruimte, met brede straten, veel groen en volop speelgelegenheid voor kinderen. Op loopafstand bevinden zich scholen, winkels en sportvoorzieningen. Daarnaast liggen de Carnisse Grienden en de Oude Maas op slechts enkele minuten fietsen, ideaal voor liefhebbers van natuur en ontspanning.
Dankzij de uitstekende ligging ten opzichte van uitvalswegen (A15, A29), de tramhalte naar Rotterdam en het NS-station Barendrecht, is deze woning niet alleen mooi om te wonen, maar ook bijzonder praktisch voor woon-werkverkeer.
Een woning die voelt als thuiskomen, stijlvol, warm en met een oog voor detail afgewerkt.
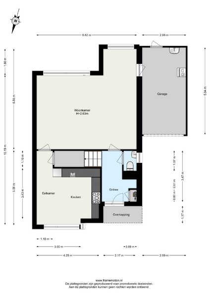
Indeling met indicatieve maten
BEGANE GROND:
Via de verzorgde voortuin met cortenstalen plantenbakken en een brede oprit voor twee auto's betreedt u de woning.
De entree biedt toegang tot de hal met meterkast, garderobe en een modern, geheel betegeld toilet met fonteintje.
Een hoge zwarte glazen paneeldeur geeft toegang tot de lichte woonkamer met grote grijze plavuizen voorzien van vloerverwarming. De woonkamer is sfeervol ingedeeld, met een grote schuifpui naar de zonnige achtertuin en witte shutters voor de ramen die zorgen voor privacy en stijl. Vanuit de woonkamer is er tevens toegang tot de garage.
Aan de voorzijde bevindt zich de woonkeuken, afsluitbaar met een tweede zwarte glazen paneeldeur. De keuken is uitgevoerd in een chique taupe kleurstelling met een donker natuurstenen werkblad en voorzien van diverse inbouwapparatuur zoals een koel-/vriescombinatie, combi-oven, 4-pits inductiekookplaat met RVS-afzuigkap, vaatwasser en een Quooker Flex-kraan
De grote raampartijen met shutters zorgen voor veel licht en een gezellig uitzicht op de voortuin, terwijl er voldoende ruimte is voor een eettafel, ideaal voor lange avonden tafelen met familie en vrienden.
De achtertuin op het zuiden is fraai aangelegd met veel groen, siergrassen en twee robuuste cortenstalen bakken met olijfbomen. Meerdere terrassen bieden heerlijke plekken om van de zon te genieten. De brede zijtuin is afgesloten met een poort en biedt extra privacy.
De garage is uitgerust met een elektrische garagedeur, wasmachine- en drogeraansluiting, en herbergt de omvormer van de 11 zonnepanelen.
EERSTE VERDIEPING:
De ruime overloop geeft toegang tot de slaapkamers en de badkamer.
Slaapkamer 1 bevindt zich aan de achterzijde en is royaal van formaat, met de mogelijkheid om deze kamer eenvoudig te splitsen in twee aparte slaapkamers.
Slaapkamer 2 ligt aan de voorzijde en heeft, net als de kamer aan de achterzijde, een laminaatvloer en behangwanden.
De badkamer is ruim en luxe uitgevoerd met een ligbad, aparte inloopdouche met glazen douchewand, tweede toilet, en een dubbel wastafelmeubel met verwarmde spiegel en verlichting. De vloer is voorzien van vloerverwarming en de afwerking in wit-grijze tinten geeft de ruimte een moderne, frisse uitstraling.
TWEEDE VERDIEPING:
Via een vaste trap bereikt u de tweede verdieping. Hier bevindt zich een grote voorzolder met Velux-dakraam, CV-installatie (vernieuwd in 2023) en mechanische ventilatie (vernieuwd in 2025). Achter de knieschotten is volop bergruimte.
De derde slaapkamer ligt aan de achterzijde en heeft een hoge nok, een groot Velux-dakraam en een laminaatvloer, een prettige, lichte ruimte die ook uitstekend dienst kan doen als werkkamer of hobbyruimte.
- Fraai afgewerkte 2/1-kapwoning met garage
- Oprit voor twee auto’s
- Beide trappen zijn in 2023 afgewerkt met duurzame laminaat trapbekleding
- Zonnige tuin op het zuiden met veel privacy
- Elektrisch bedienbare screen voor het raam aan de uitbouw op de begane grond
- Elektrisch bedienbaar zonnescherm aan de achterzijde van de woning
- 11 zonnepanelen (lage energiekosten)
- CV-installatie vernieuwd in 2023
- Moderne woonkeuken met Quooker en natuurstenen werkblad
- Luxe badkamer met ligbad, inloopdouche en vloerverwarming
- Fraaie zwarte glazen paneeldeuren voor een moderne uitstraling
- Mogelijkheid tot extra slaapkamers op de 1e verdieping
- Gelegen in een geliefde, kindvriendelijke wijk nabij alle voorzieningen
Makelaar: Marco Bos