Welkom in deze charmante tusseneengezinswoning in de gewilde en kindvriendelijke wijk Nieuweland te Barendrecht. Een plek waar rust, comfort en bereikbaarheid samenkomen.
De woning straalt warmte en gezelligheid uit, met een fijne achtertuin op het zuiden, een lichte woonkamer met openslaande deuren, een ruime open keuken en een complete badkamer. Dankzij de open zolderverdieping is er volop ruimte voor het realiseren van extra kamers of een heerlijke thuiswerkplek.
De wijk Nieuweland staat bekend om haar groene lanen, waterpartijen en speeltuintjes. Binnen enkele minuten wandel je langs het water of door het nabijgelegen park. Scholen, kinderopvang, sportverenigingen en supermarkten liggen allemaal in de buurt. Bovendien zijn NS-station Barendrecht, de tram naar Rotterdam-Centrum en de uitvalswegen A15, A16 en A29 snel bereikbaar, ideaal voor wie werkt in Rotterdam of Dordrecht.
Kortom: een heerlijke woning op een toplocatie waar je zó in kunt trekken én waar je nog verder kunt groeien.
Indeling met indicatieve maten
BEGANE GROND:
Bij binnenkomst valt direct de ruime hal op met garderobe, meterkast en een net afgewerkte toiletruimte met fonteintje. Vanuit de hal stap je de lichte woonkamer in, een gezellige leefruimte met openslaande deuren naar de zonnige achtertuin. Dankzij de grote raampartijen geniet je hier van volop daglicht en een prettig uitzicht op het groen.
De open keuken ligt aan de voorzijde van de woning en is via een charmante ronde toog verbonden met de woonkamer. De keuken is opgesteld in een praktische hoekopstelling en voorzien van diverse inbouwapparatuur: een 4-pits keramische kookplaat, RVS afzuigkap, koel/vriescombinatie, vaatwasser en combi-oven. De lichte vanillekleurige kasten en het kunststof werkblad zorgen voor een tijdloze uitstraling.
De woonkamer en keuken zijn voorzien van comfortabele vloerverwarming.
De achtertuin is verzorgd aangelegd met sierbestrating en beplanting, en ligt ideaal op het zuiden. Hier geniet je de hele dag van de zon! Achterin de tuin staat een houten berging en via de achterom is de tuin gemakkelijk bereikbaar. Een handmatig zonnescherm biedt desgewenst schaduw tijdens warme dagen.
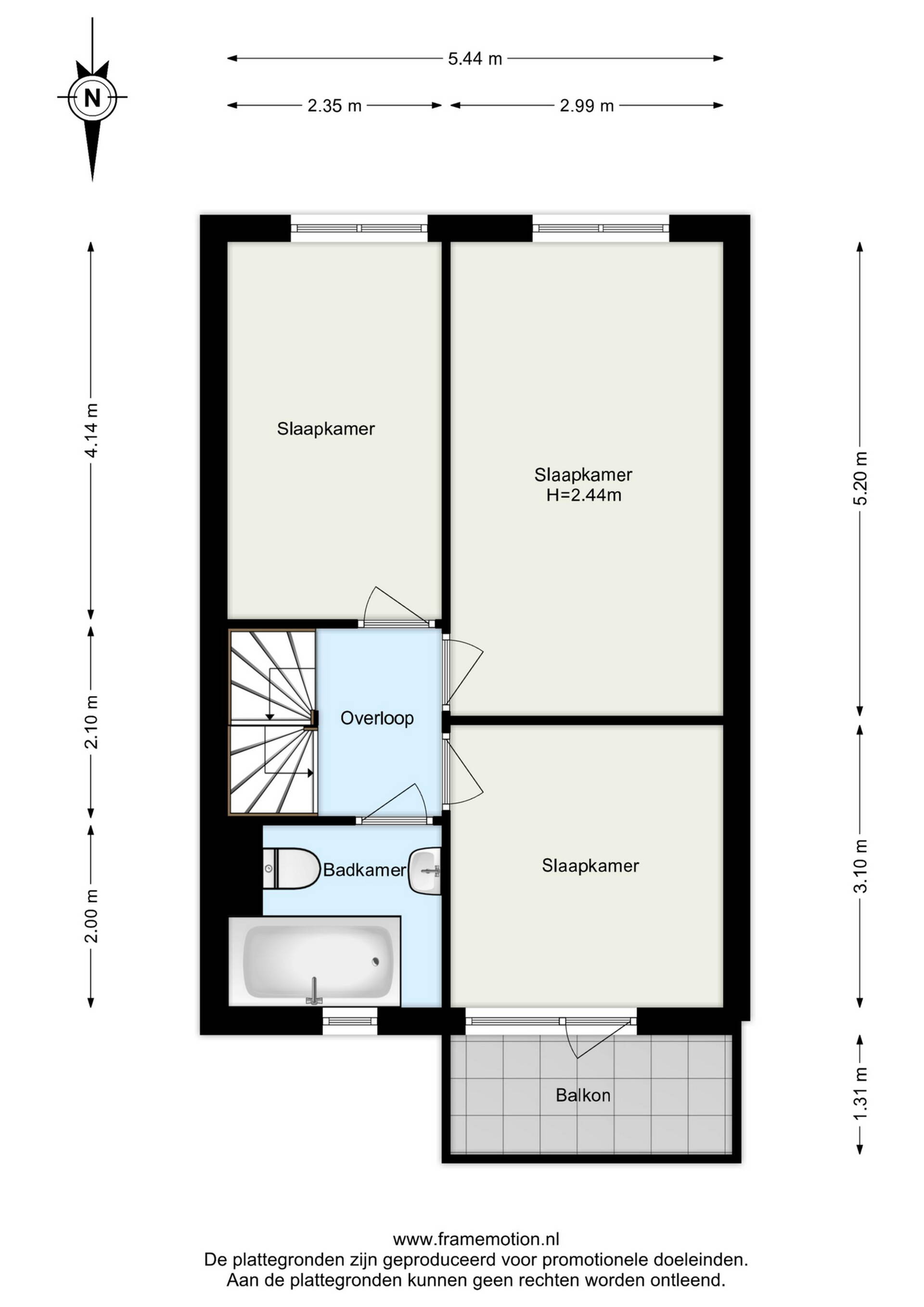
EERSTE VERDIEPING:
De eerste verdieping telt drie slaapkamers. De slaapkamer aan de voorzijde heeft toegang tot een balkon, ideaal voor een momentje in de ochtendzon. De twee slaapkamers aan de achterzijde zijn voorzien van handmatige screens, wat zorgt voor extra comfort in de zomer.
De badkamer is netjes en compleet uitgevoerd met een ligbad met glazen douchescherm, tweede toilet en wastafelmeubel. De lichte betegeling geeft het geheel een frisse uitstraling.
TWEEDE VERDIEPING:
De open zolderverdieping is verrassend ruim en biedt volop mogelijkheden! Dankzij het hoge plafond en de grote ramen is dit een lichte en inspirerende ruimte. Hier vind je tevens de cv-installatie, mechanische ventilatie, de omvormer voor de zonnepanelen en de aansluitingen voor wasmachine en droger.
Of je nu droomt van een vierde slaapkamer, hobbyruimte, of een kantoor aan huis, deze verdieping kan volledig naar wens worden ingedeeld. Achter de knieschotten is bovendien handige bergruimte aanwezig.
- Tusseneengezinswoning met sfeervolle uitstraling
- Achtertuin op het zuiden met houten berging en achterom
- Lichte woonkamer met openslaande deuren naar de tuin
- Woonkamer en keuken voorzien van vloerverwarming
- Open keuken met inbouwapparatuur (keramische kookplaat, vaatwasser, combi-oven, koel/vriescombi)
- Complete badkamer met ligbad, tweede toilet en wastafelmeubel
- Drie slaapkamers op de eerste verdieping
- Ruime open zolder met mogelijkheid voor extra kamers
- Voorzien van 12 zonnepanelen
- Gelegen in de groene en kindvriendelijke wijk Nieuweland
- Uitstekende bereikbaarheid met NS-station en A15/A29/A16 nabij
Makelaar: Marco Bos