Welkom in deze prachtig afgewerkte twee-onder-een-kapwoning in de geliefde en rustige woonwijk Nieuweland te Barendrecht. Deze woning combineert moderne gemakken, energiezuinige voorzieningen en een sfeervolle uitstraling tot een heerlijk thuis voor het hele gezin.
Dankzij de aangebouwde garage, oprit voor meerdere auto's, extra muur en vloer isolatie, HR++ beglazing en zonnepanelen is deze woning niet alleen comfortabel, maar ook toekomstbestendig. De speelse indeling met schuine wanden, een ruime tuinkamer en vier volwaardige slaapkamers maken dit huis tot een unieke kans in zijn segment.
De ligging is ideaal: in een groene, kindvriendelijke buurt met speelplekken, scholen, kinderopvang en winkels op loopafstand. Binnen enkele minuten fietsen bereikt u de winkels aan de Middenbaan, en dankzij de nabijheid van de A15, A29, het NS-station Barendrecht en busverbindingen is ook Rotterdam en de rest van de Randstad uitstekend bereikbaar.
Deze woning is tot in detail verzorgd en straalt kwaliteit en comfort uit. Dankzij de energiezuinige voorzieningen, moderne afwerking, ruime indeling en de prachtige ligging aan het water biedt deze woning alles wat u zoekt in een eigentijds familiehuis. Hier woont u in alle rust, met het gemak van voorzieningen om de hoek en uitstekende verbindingen met de stad.
Indeling met indicatieve maten
BEGANE GROND:
Bij binnenkomst treft u een ruime hal met de meterkast, een moderne toiletruimte met hangend toilet en wastafelmeubel, en een hardhouten trap naar de eerste verdieping. Vanuit de hal is tevens de garage bereikbaar, voorzien van een aansluiting voor wasmachine en droger, een uitstortgootsteen, vaste schuifwandkast over de gehele breedte, omvormer voor de zonnepanelen en een kanteldeur met een aparte loopdeur naar de oprit aan de voorzijde.
Via openslaande glazen paneeldeuren betreedt u vanuit de hal de lichte woonkamer, waar de grote raampartijen zorgen voor veel daglicht en een ruimtelijk gevoel. De gestoomde beuken parketvloer en de sfeervolle gashaard geven de tuingerichte woonkamer een warme uitstraling.
Achter de garage bevindt zich de tuinkamer, die direct toegang biedt tot de fraaie achtertuin. Deze tuin, gelegen op het noordwesten, is een oase van rust met veel groen, meerdere terrassen, een vlonder aan het water met ingebouwde tuinbank en spotverlichting in de tuin en in de overstekken van de woning. De goed onderhouden vrijstaande houten berging is een fraaie toevoeging aan het geheel en biedt ook nog eens veel extra bergruimte. De tuin is ook buitenom door het pad naast het huis via de af te sluiten poort te bereiken.
Aan de voorzijde ligt de moderne keuken in U-opstelling, voorzien van alle wenselijke inbouwapparatuur: oven, magnetron, 4-pits keramische kookplaat, RVS afzuigkap, vaatwasser, koelkast, vriezer, Lemans carrouselkast en een Quooker Flex-kraan. De kickstart plintverwarming zorgt voor extra comfort.
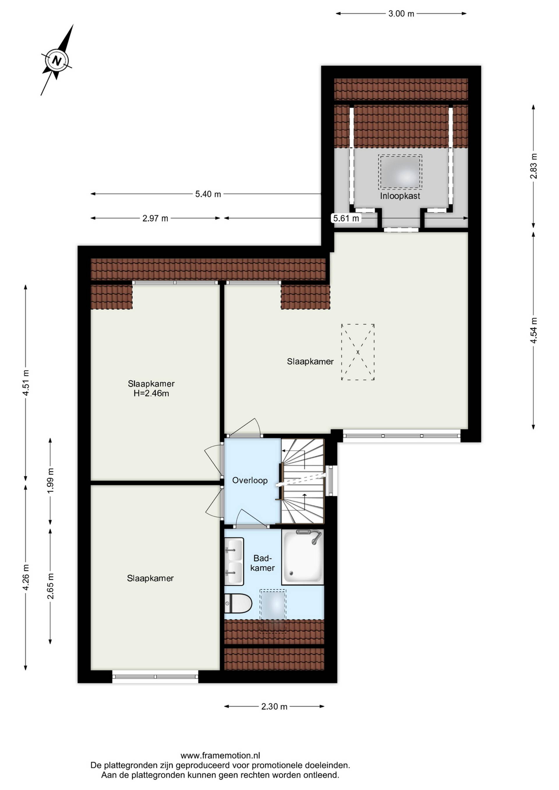
EERSTE VERDIEPING:
De ruime overloop geeft toegang tot drie slaapkamers en de badkamer.
Slaapkamer 1 (master bedroom) is royaal opgezet en beschikt over een grote inloopkast met Velux dakraam. Vanuit deze kamer is de vliering (met een Velux dakraam) bereikbaar via een vlizotrap, ideaal als extra bergruimte. De slaapkamer is voorzien van airconditioning.
Slaapkamer 2, gelegen aan de achterzijde, heeft een dakkapel en een vaste schuifkastenwand.
Slaapkamer 3, aan de voorzijde, beschikt eveneens over een vaste schuifkastenwand.
Alle slaapkamers zijn voorzien van laminaatvloeren.
De badkamer is modern uitgevoerd met een ruime inloopdouche, een dubbel wastafelmeubel met spiegelkast, een tweede hangend toilet en een Velux dakraam. De wanden en vloer zijn volledig betegeld in een stijlvolle wit/grijze kleurstelling.
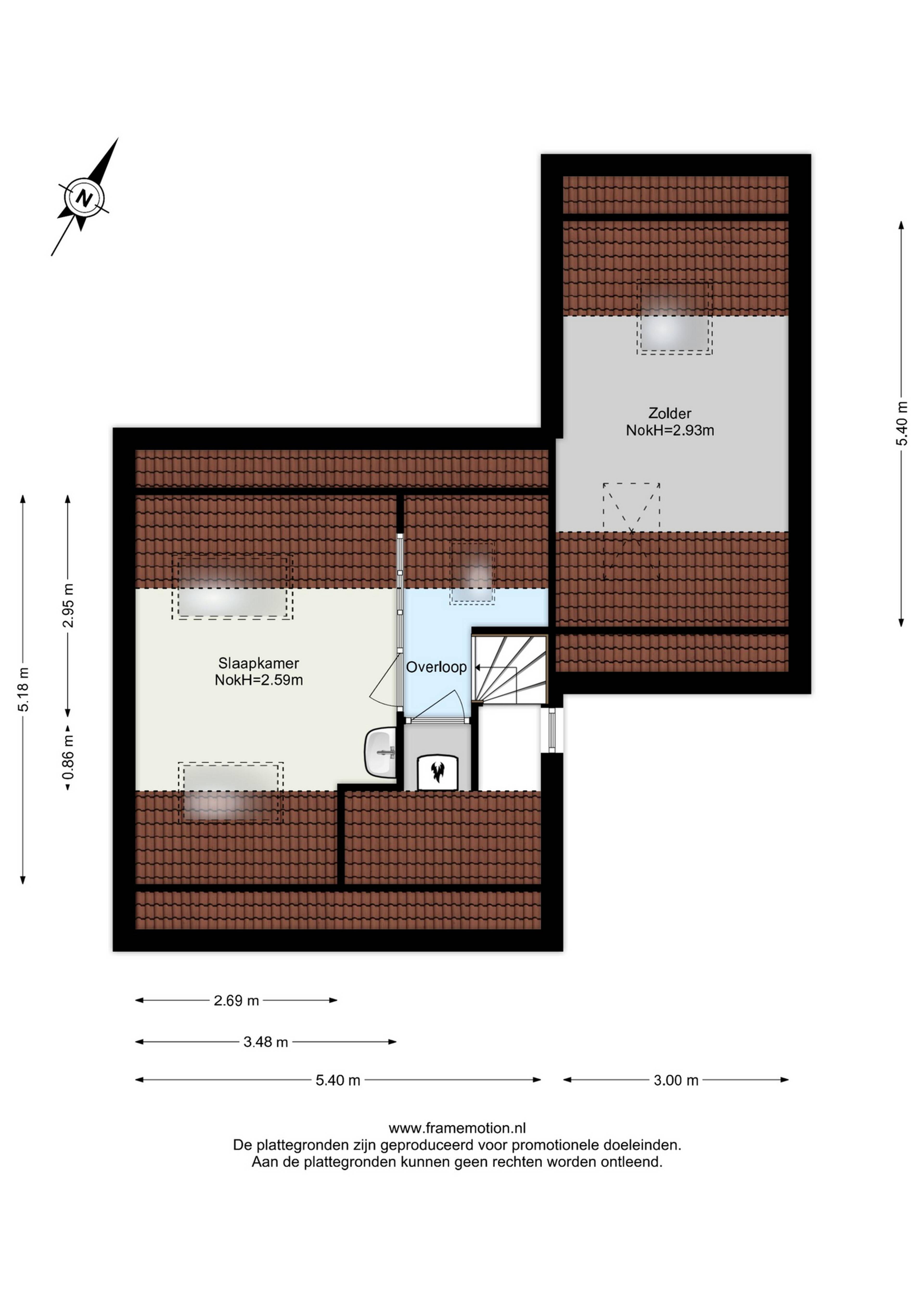
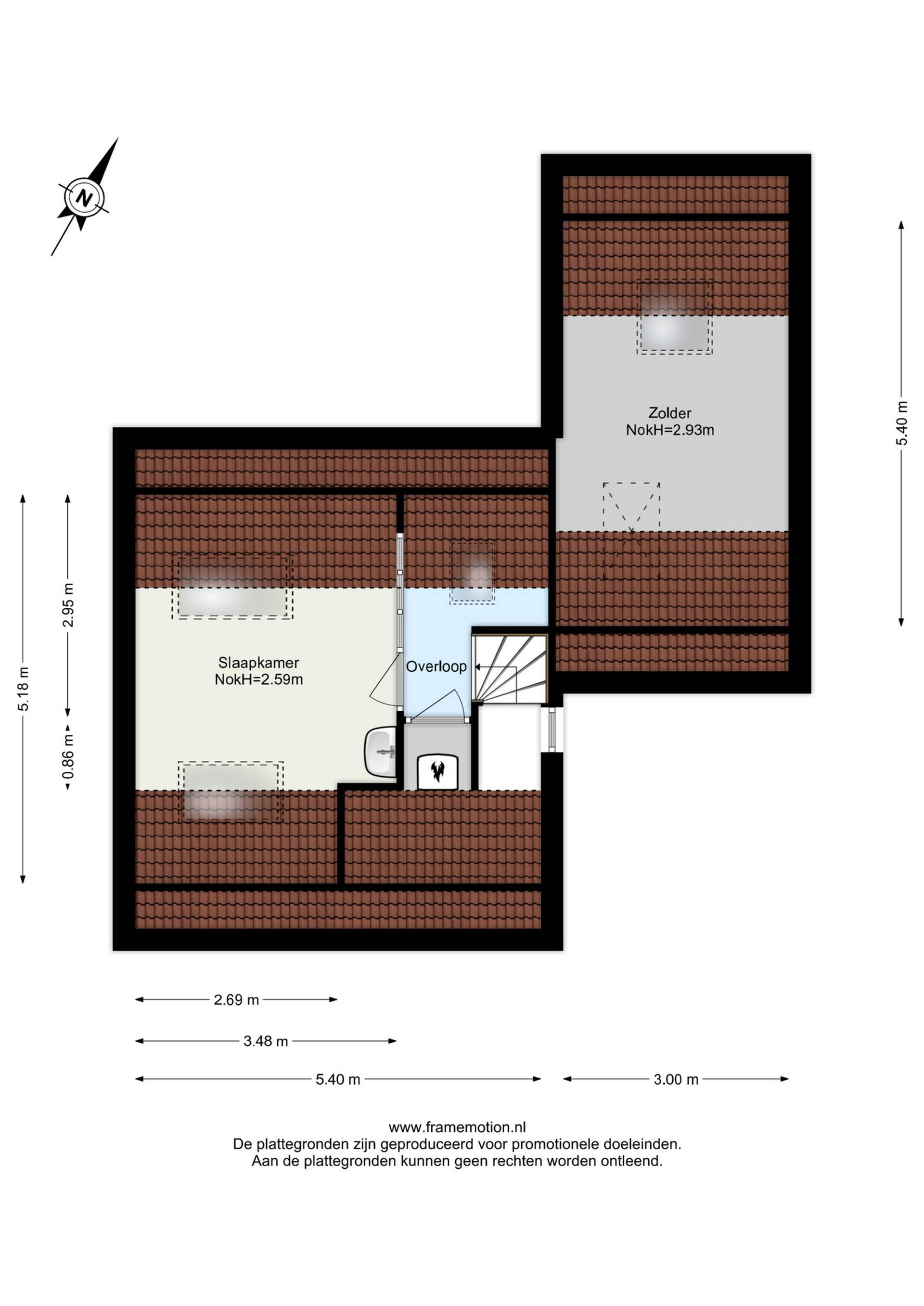
TWEEDE VERDIEPING:
De tweede verdieping biedt een lichte overloop met Velux dakraam en een afgesloten ruimte voor de CV-opstelling.
Daarnaast bevindt zich hier de vierde slaapkamer, voorzien van Velux dakramen aan de voor- en achterzijde, een vaste wastafel met warm en koud water, bergruimte achter het knieschot en inbouwspots in het plafond. Een glazen pui tussen de overloop en de slaapkamer zorgt voor extra licht en een moderne uitstraling. De tweede verdieping is eveneens voorzien van een laminaatvloer.
- Goed afgewerkte 2/1 kapwoning met aangebouwde garage
- Oprit met ruimte voor 2 à 3 auto’s
- Extra muur- en vloerisolatie, HR++ beglazing en zonnepanelen
- Speelse indeling met schuine wanden en veel lichtinval
- Moderne keuken met Quooker en complete inbouwapparatuur
- Luxe badkamer met inloopdouche, dubbele wastafel en tweede toilet
- Vier slaapkamers, waarvan één met grote inloopkast en airco
- Vliering met veel bergruimte, bereikbaar via vlizotrap
- Fraaie, groene achtertuin aan het water met meerdere terrassen en vlonder
- Gelegen in kindvriendelijke wijk Nieuweland, nabij winkels, scholen en OV
Makelaar: Marco Bos