In de geliefde wijk Nieuweland in Barendrecht staat deze verzorgde en uitgebouwde tusseneengezinswoning klaar voor nieuwe bewoners die houden van modern wooncomfort, een zonnige tuin en een centrale ligging. Hier ervaar je het fijne dorpsgevoel met alle dagelijkse voorzieningen om de hoek. Winkels aan het Muziekplein voor de snelle boodschappen, de Middenbaan voor uitgebreid shoppen en een ruim aanbod aan scholen, kinderopvang én sportverenigingen – alles binnen handbereik!
Daarnaast woon je hier vlakbij de natuurgebieden langs de Oude Maas, perfect voor een wandeling, hardlooprondje of een ontspannen middag op het terras van een van de gezellige restaurants in het dorp. Goede bereikbaarheid? Absoluut! De bus stopt in de wijk en NS-station Barendrecht is eenvoudig te bereiken per fiets.
Kortom: een heerlijke, onderhoudsvriendelijke woning op een toplocatie waar je direct comfortabel kunt wonen!
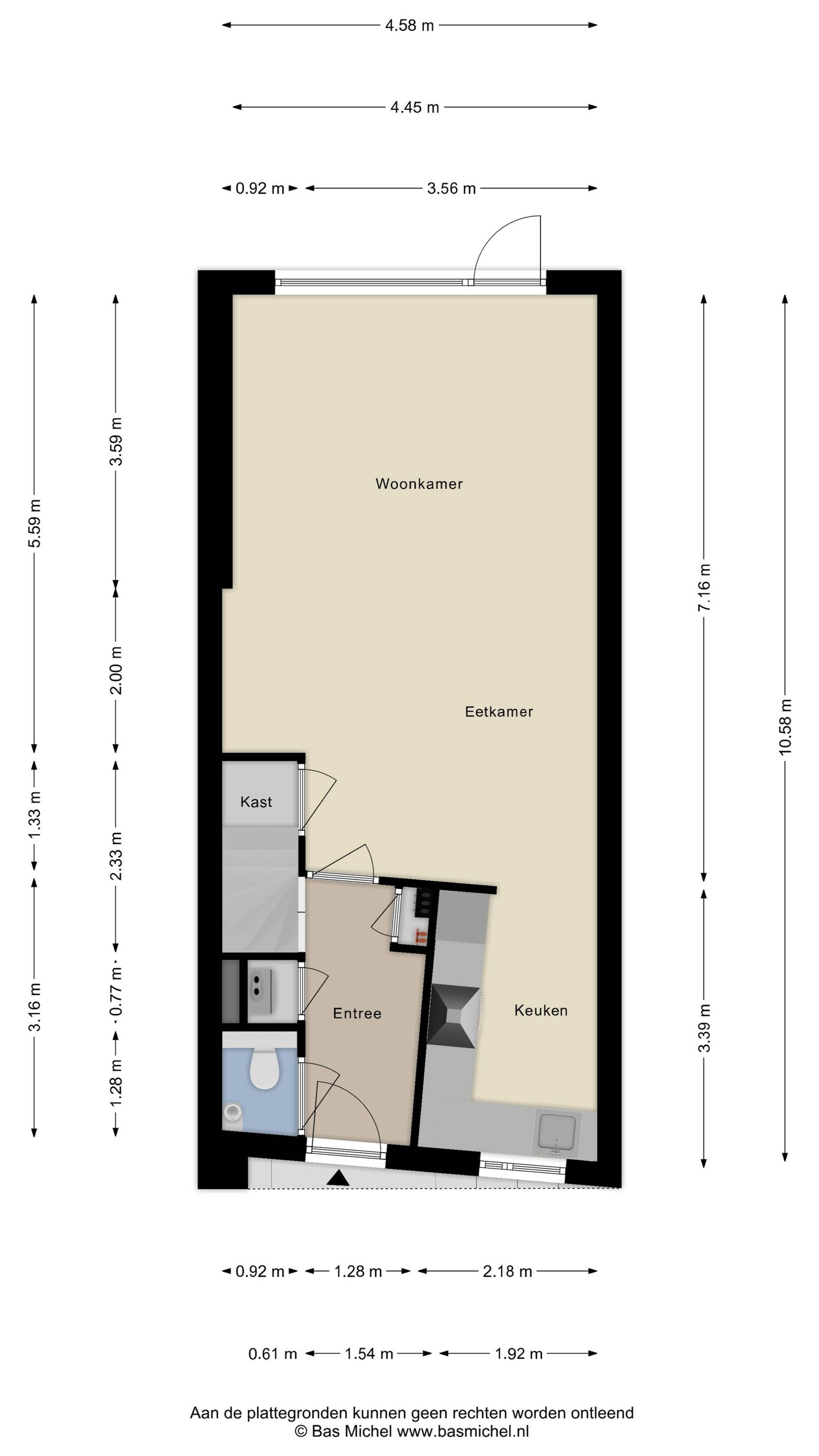
BEGANE GROND:
Bij binnenkomst vind je een nette hal met meterkast, cv-kast en een modern toilet (2021), uitgevoerd met beige/grijze tegels, een strak zwart hangend toilet en een stijlvol zwart fonteintje.
De uitgebouwde woonkamer is een echte leefruimte: een duurzame laminaatvloer met vloerverwarming, glad gestucte wanden en plafonds met inbouwspots en grote raampartijen die zorgen voor veel lichtinval. Via een loopdeur bereik je de tuin.
Aan de voorzijde bevindt zich de lichte hoekkeuken in wit hoogglans met een grijs kunststof werkblad en diverse inbouwapparatuur waaronder een vaatwasser, koel-vriescombinatie en combimagnetron.
De achtertuin is in 2021 volledig vernieuwd en gelegen op het zuiden. Deze zonnige buitenruimte is onderhoudsvriendelijk aangelegd met grote donkere tegels en houten schuttingen. Achter in de tuin staat een vrijstaande houten berging en uiteraard is er een achterom aanwezig.
EERSTE VERDIEPING:
Hier bevinden zich twee ruime slaapkamers, waarvan de slaapkamer aan de achterzijde eenvoudig kan worden opgesplitst in twee afzonderlijke kamers. Ook deze verdieping beschikt over een nette laminaatvloer.
De luxe badkamer (2021) is een echte eyecatcher! Afgewerkt in dezelfde stijlvolle kleuren als het toilet beneden:
– Zwart hangend toilet
– Houten wastafelmeubel met brede zwarte wastafel
– Ronde spiegel met verlichting
– Riante inloopdouche met zwarte glazen douchewand
TWEEDE VERDIEPING:
Via een vaste trap kom je op de ruime zolderverdieping. Hier vindt je de overloop met opstelling voor de wasmachine en droger. De derde slaapkamer strekt zich uit over de gehele lengte van de woning en is uitgerust met een dakraam aan de voorzijde én een dakkapel aan de achterzijde. Ook hier liggen laminaatvloeren en zijn inbouwspots in het plafond aanwezig.
BIJZONDERHEDEN:
- Uitgebouwde woonkamer met veel lichtinval
- 3 slaapkamers (extra kamers mogelijk)
- Badkamer en toilet vernieuwd in 2021
- Voor- en achtertuin vernieuwd in 2021
- Zonnige achtertuin op het zuiden, met achterom
- Moderne keuken met inbouwapparatuur
- Fraaie afwerking met o.a. stucwerk en inbouwspots
- Gelegen in de populaire wijk Nieuweland
- Alle voorzieningen zoals winkels, OV en scholen binnen handbereik
- Nabij recreatie aan de Oude Maas en sportfaciliteiten in de buurt
Makelaar: Marco Bos