Welkom in deze prachtige, uitgebouwde tussenwoning in de geliefde en jonge wijk Nieuweland. Een woning die u direct zal verrassen door de ruimte, het wooncomfort en de hoogwaardige afwerking. Vanaf het moment dat u binnenstapt, voelt u de lichte en open sfeer dankzij de royale hal en de stijlvolle doorgang naar de riante, tuingerichte woonkamer. De moderne keuken aan de voorzijde, maar liefst vijf slaapkamers, luxe sanitaire voorzieningen, een balkon én een ruime achtertuin maken dit een woning die volledig klaar is voor een nieuw gezin – u hoeft alleen uw spullen te verhuizen!
Nieuweland staat bekend om haar kindvriendelijke karakter, groene omgeving en uitstekende voorzieningen. Basisscholen, kinderopvang en speelplekken bevinden zich op korte loopafstand. Daarnaast bent u binnen enkele minuten op de snelwegen richting Rotterdam en Utrecht en ook het openbaar vervoer is uitstekend geregeld. Een heerlijke plek om te wonen, te leven en te genieten!
Kortom: zoekt u een instapklare, ruime eengezinswoning met hoogwaardige afwerking en volop leefruimte? Dan komt u hier niets tekort.
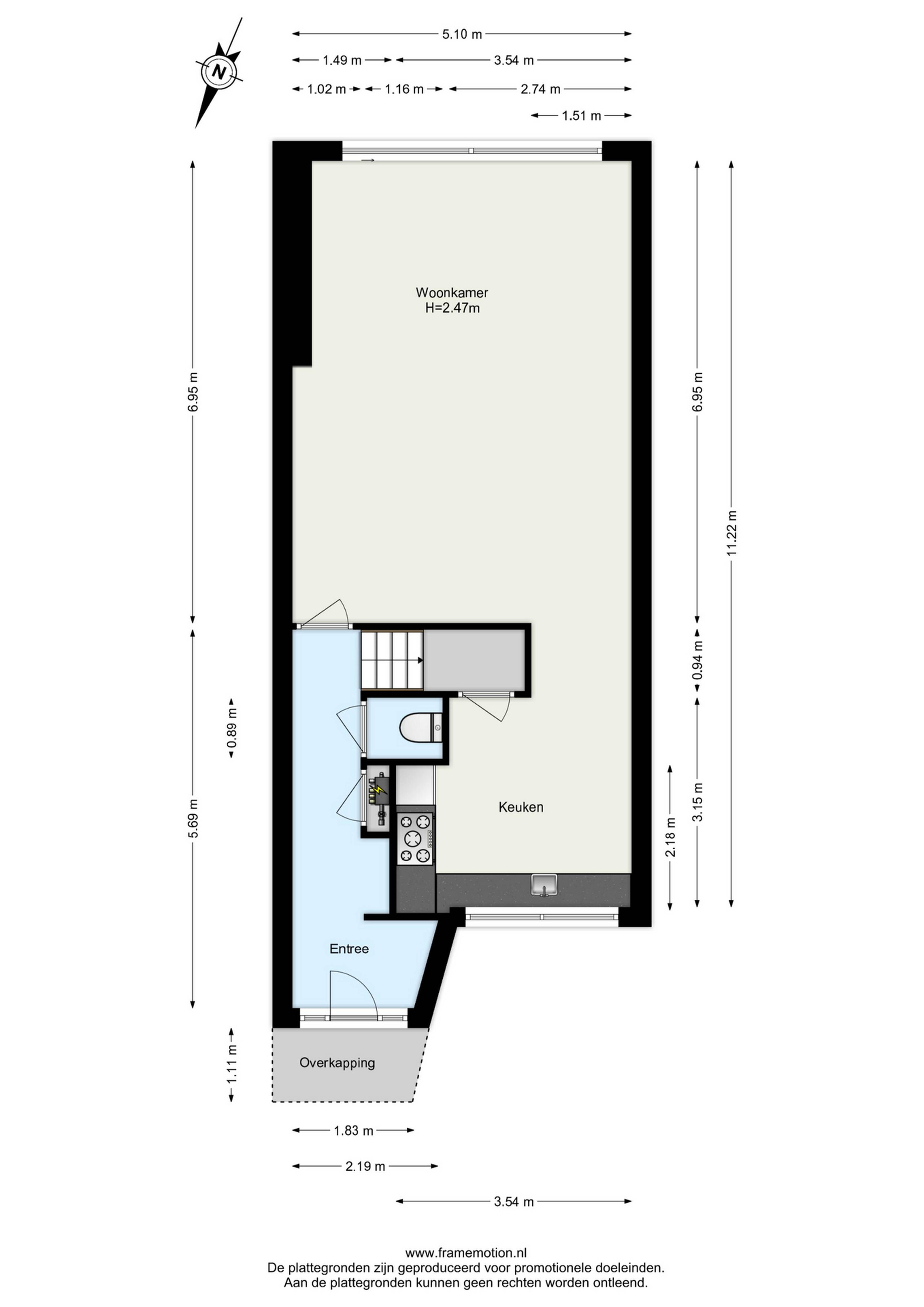
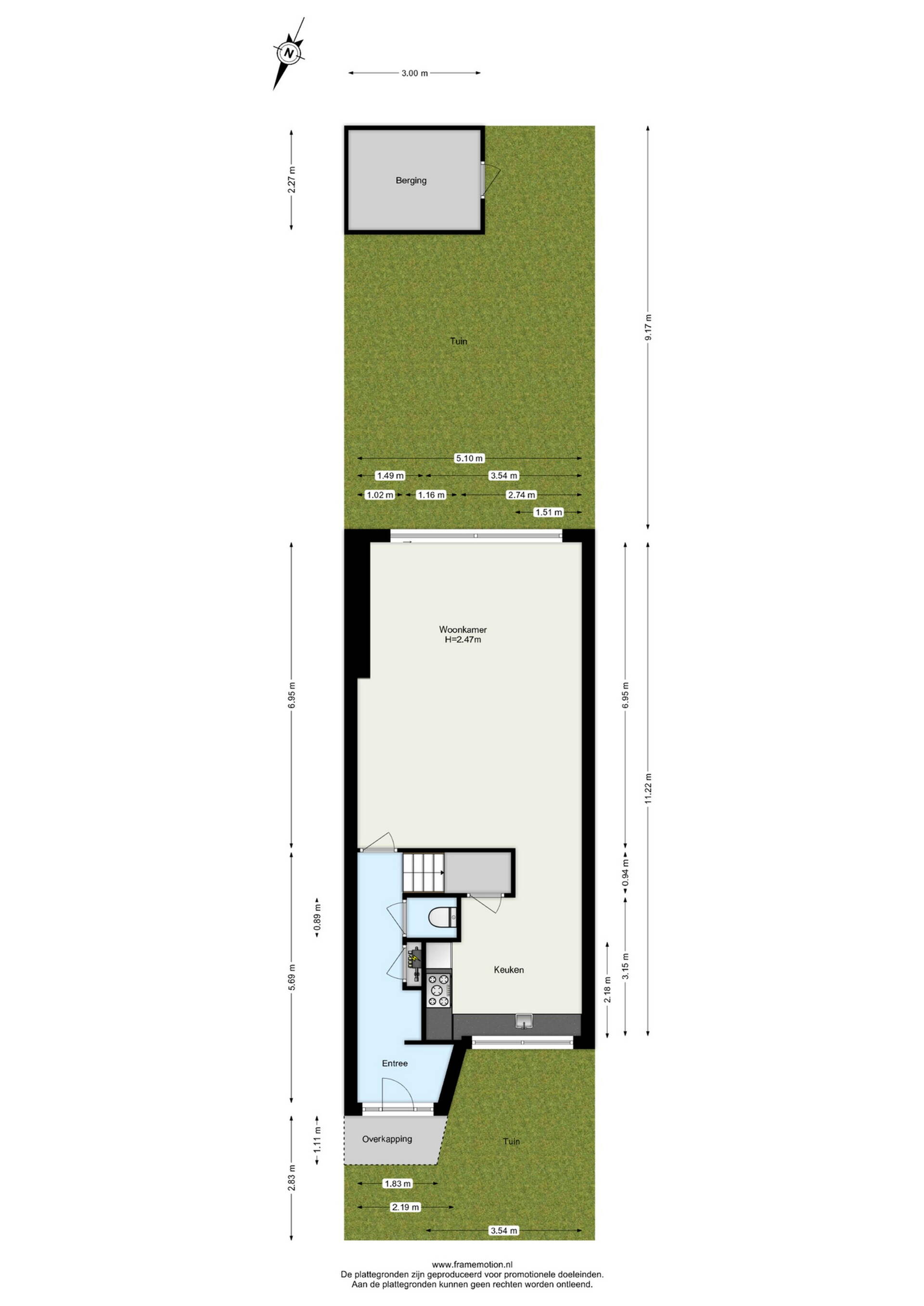
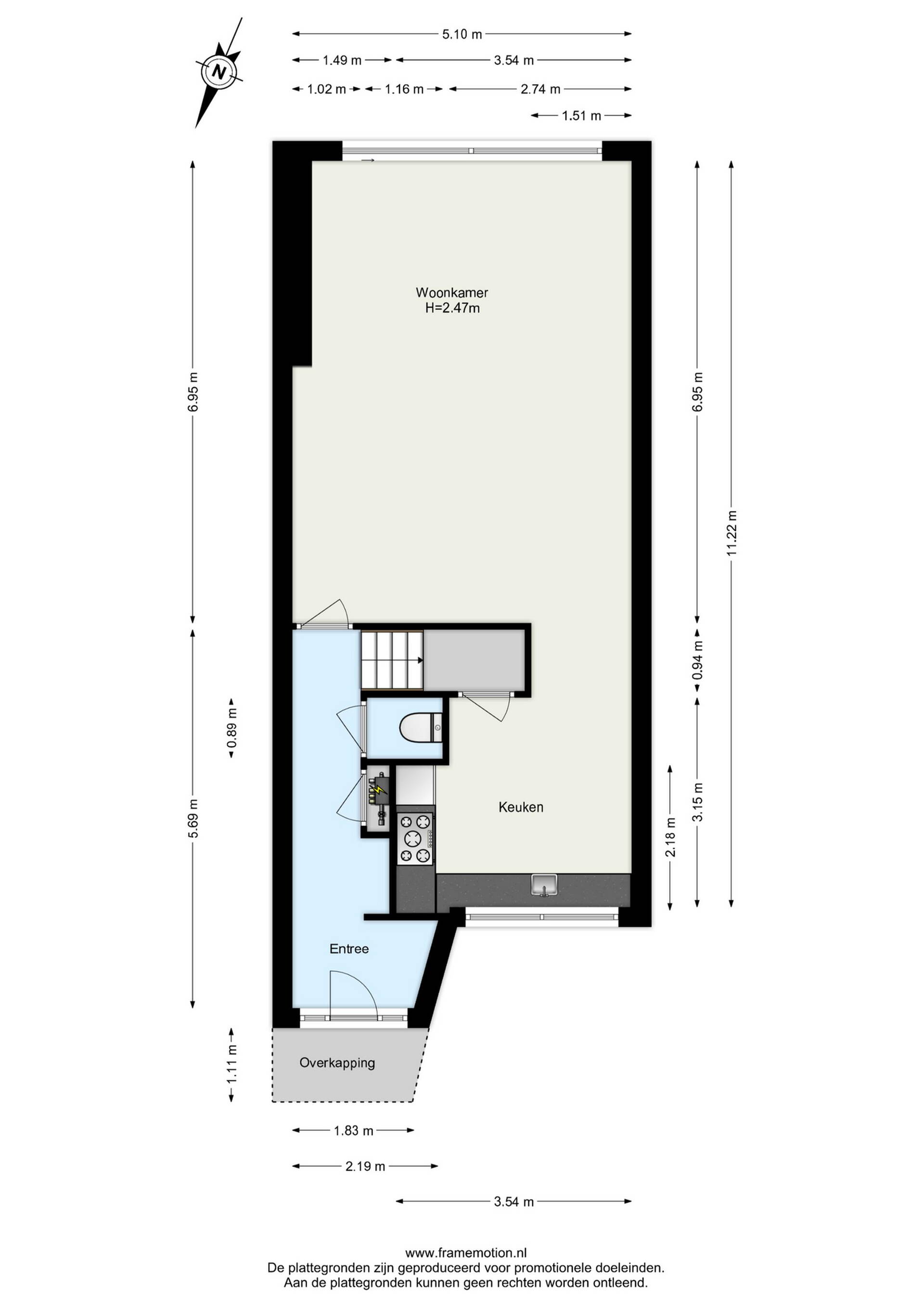
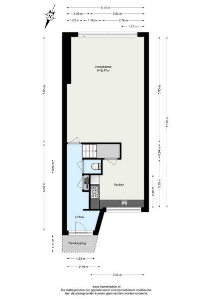
BEGANE GROND:
Een ruime, lichte entree verwelkomt u direct. De hal is voorzien van garderoberuimte, meterkast en een modern afgewerkte toiletruimte met stijlvolle lichte wandpanelen.
Via de zwarte glazen paneeldeur bereikt u de tuingerichte woonkamer – uitgebouwd, voorzien van grote schuifpui, waardoor daglicht rijkelijk naar binnen stroomt. De laminaatvloer met vloerverwarming, spotverlichting in het plafond, convectorradiator en een sfeervolle elektrische haard zorgen voor sfeer én comfort. Daarnaast is er airconditioning aanwezig voor zowel koeling als verwarming.
De moderne halfopen keuken aan de voorzijde is strak uitgevoerd in hoekopstelling met uitgebreide inbouwapparatuur zoals een 5-pits gaskookplaat met RVS afzuigkap, oven, magnetron, vaatwasser en een royale Amerikaanse koel-vriescombinatie. Deze laatste is zelfs verrijdbaar, waardoor de praktische trapkast altijd eenvoudig bereikbaar blijft.
De onderhoudsvriendelijk aangelegde achtertuin op het oosten biedt volop ruimte voor een fijne lounge- of tuinset. Geniet hier van zonnige momenten én een heerlijke avond in rust. Achterin de tuin bevinden zich een houten berging en de achterom.
EERSTE VERDIEPING:
Via de ruime overloop heeft u toegang tot drie comfortabele slaapkamers, allen keurig afgewerkt.
Slaapkamer 1 (voorzijde): voorzien van airconditioning en elektrisch bedienbaar rolluik
Slaapkamer 2 (achterzijde): voorzien van airconditioning
Slaapkamer 3 (achterzijde): ideaal als kinderkamer, werkruimte of hobbykamer
De luxe badkamer is volledig betegeld in moderne beige/grijstinten en uitgerust met een fraai wastafelmeubel met spiegelkast en verlichting, een tweede hangend toilet en een royale inloopdouche met glazen wand en regendouche.
TWEEDE VERDIEPING:
Een verdieping vol extra mogelijkheden!
Op de overloop bevindt zich een afgesloten technische ruimte met opstelplaats voor de wasmachine en droger, de CV-installatie, een extra douchecabine met massagejets en een wastafelmeubel – ideaal voor een groot gezin.
Slaapkamer 4: aan de voorzijde, met airco, elektrisch bedienbaar rolluik en hoge plafonds
Slaapkamer 5: aan de achterzijde, tevens voorzien van airco en directe toegang tot het balkon
Ook hier zijn beide kamers voorzien van een nette laminaatvloer.
BIJZONDERHEDEN:
Uitgebouwde woonkamer met vloerverwarming
Maar liefst 5 slaapkamers
Grotendeels voorzien van airconditioning
Luxe badkamer én tweede doucheruimte
Onderhoudsvriendelijke achtertuin op het oosten
Balkon op de tweede verdieping
Ruime en moderne keuken met uitgebreide apparatuur
Elektrisch bedienbare rolluiken aanwezig
Ideale ligging nabij scholen, winkels en uitvalswegen
Makelaar: Marco Bos