Aan de rand van het charmante en rustige Heerjansdam ligt deze royale geschakelde watervilla met een bijzondere combinatie van ruimte, licht en comfort. De woning beschikt over maar liefst vijf slaapkamers, een zeer ruime en lichte woonkamer, een moderne woonkeuken, drie zonnige terrassen – waarvan één direct aan het water – en een grote inpandige garage. Daarnaast heeft u de mogelijkheid om 2 auto's te parkeren op uw eigen oprit.
De villa is ontworpen met oog voor licht en leefruimte. Grote raampartijen zorgen voor een heerlijk open sfeer, terwijl de indeling uitnodigt tot comfortabel wonen met meerdere zit- en leefgedeelten. Dankzij de ligging aan het water ervaart u dagelijks rust en een gevoel van vrijheid – een uitzicht dat nooit verveelt.
De woning is gelegen in een verkeersluw en kindvriendelijk hofje, wat zorgt voor privacy en veiligheid. U geniet hier van de rust van het dorpsleven, terwijl u alle dagelijkse voorzieningen binnen handbereik heeft. Winkels, basisscholen, kinderopvang en sportvoorzieningen liggen op loopafstand. Daarnaast biedt de groene omgeving – met het Waaltje, de Oude Maas en de uitgestrekte polder – volop mogelijkheden om te wandelen, fietsen of ontspannen aan het water.
De bereikbaarheid is uitstekend: binnen enkele minuten bent u op de A15 of A16, en via station Barendrecht reist u in een kwartier naar Rotterdam Centraal. Zo combineert deze woning het beste van twee werelden: rustig wonen aan het water, met de stad om de hoek.
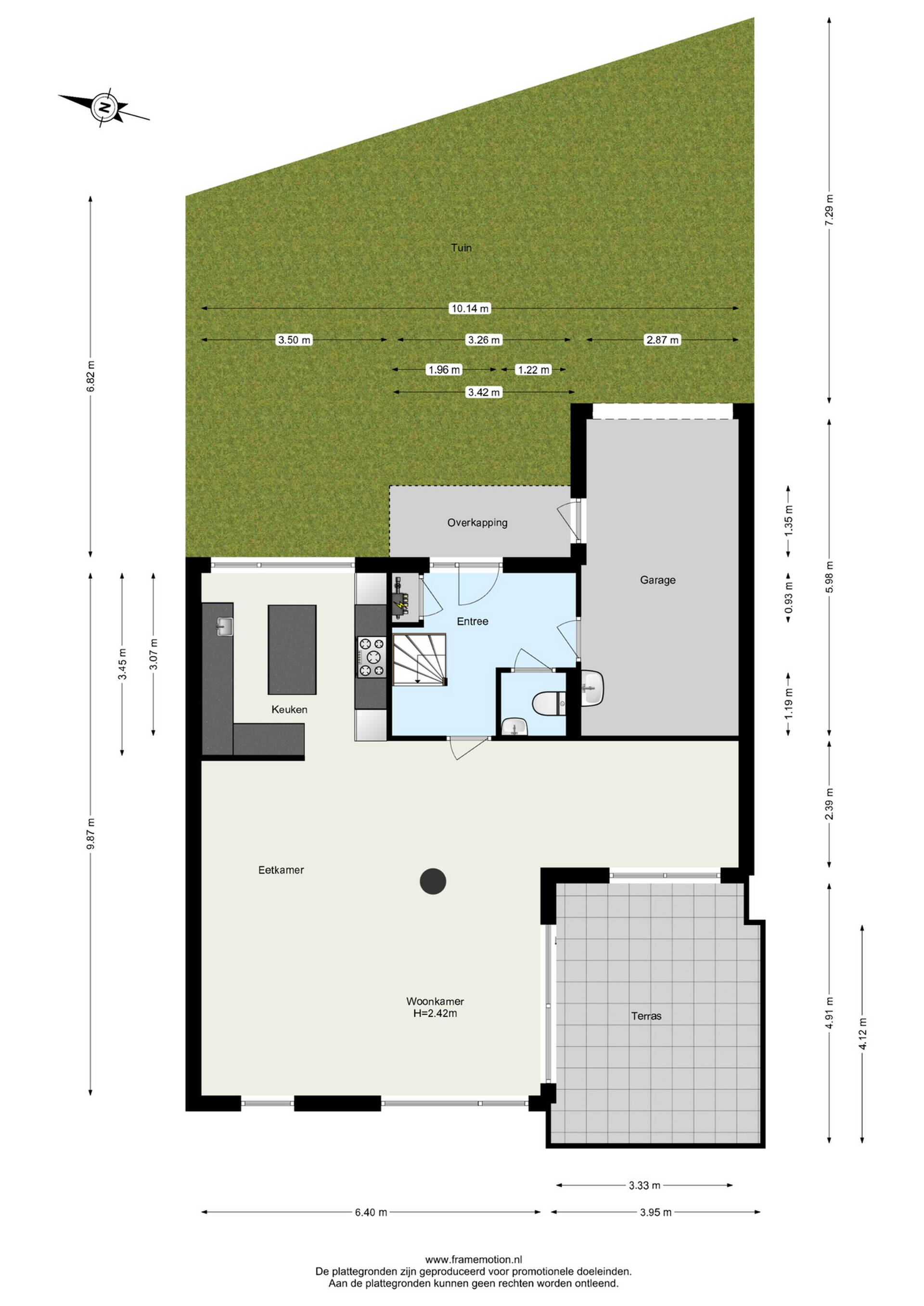
BEGANE GROND:
De royale voortuin biedt parkeergelegenheid op eigen terrein. Via de entree komt u in de ruime hal met trapopgang, modern toilet en toegang tot de inpandige, geïsoleerde garage – ideaal voor het stallen van fietsen, opslag of als hobbyruimte.
De living is royaal en sfeervol, met grote raampartijen en een schuifpui naar het terras aan het water. Dankzij de eikenhouten whitewash vloer en de speelse indeling ontstaat er een lichte en uitnodigende leefruimte met volop mogelijkheden voor meerdere zithoeken.
Aan de voorzijde bevindt zich de moderne woonkeuken, uitgerust met een royaal werkeiland met bergruimte en de vriezer. De keuken is voorzien van diverse inbouwapparatuur zoals een koelkast, 6-pits gaskookplaat met RVS-afzuigkap, combi-oven, vaatwasser en een stijlvol composiet werkblad. De donkere Belgisch hardstenen vloer vormt een prachtig contrast met de lichte woonkamer.
Het terras aan het water is een echte blikvanger: hier kunt u op elk moment van de dag genieten van het uitzicht, de rust en de zon.
EERSTE VERDIEPING:
Op de eerste verdieping treft u een ruime overloop met toegang tot twee kamers, de badkamer en een aparte toiletruimte.
De hoofdslaapkamer beschikt over een eigen balkon – een fijne plek om de dag rustig te beginnen of af te sluiten. De tweede kamer, momenteel ingericht als werkkamer, biedt toegang tot het royale L-vormige dakterras, waar u de zon op elk moment van de dag kunt opzoeken.
De badkamer is modern en praktisch ingedeeld met een douchecabine, dubbele wastafel en royale bergruimte in de diverse spiegelkasten. De gehele verdieping is afgewerkt met een laminaatvloer, wat zorgt voor een verzorgde uitstraling.
TWEEDE VERDIEPING:
De tweede verdieping biedt een overloop met een aparte wasruimte, voorzien van aansluiting voor wasmachine, droger en de opstelling van de CV-installatie. Daarnaast zijn er nog drie slaapkamers, die uitstekend kunnen dienen als kinderkamers, logeerkamers of thuiswerkplekken.
Via een vlizotrap bereikt u de vliering, die extra bergruimte biedt – praktisch en netjes uit het zicht.
BIJZONDERHEDEN:
- Royale geschakelde watervilla met 5 slaapkamers
- Drie terrassen, waaronder één direct aan het water
- Grote inpandige garage met directe toegang tot de woning
- Parkeren op eigen terrein voor 2 auto's
- Zeer lichte woonkamer met grote raampartijen en schuifpui
- Moderne woonkeuken met werkeiland en complete apparatuur
- Kindvriendelijke ligging in een verkeersluw hofje
- Nabij winkels, scholen, kinderopvang en sportvoorzieningen
- Prachtige natuurlijke omgeving met water, groen en recreatie
- Uitstekende bereikbaarheid via A15/A16 en station Barendrecht
Makelaar: Marco Bos