Karaktervolle vrijstaande jaren ’30 woning met garage, berging en fraai aangelegde tuin gelegen in een charmante straat in Poortugaal!
Aan de charmante Wilhelmina Geevestraat in Poortugaal staat deze vrijstaande jaren ’30 woning met karakteristieke erker en prachtige details uit die tijd. Hier woon je in de sfeer van toen, met het comfort van nu. Bij binnenkomst valt meteen de lichte en ruime woonkamer op, waar de Amerikaanse eiken vloer en de gezellige kachel zorgen voor een warme en huiselijke sfeer. De erker creëert niet alleen extra ruimte, maar ook een fijne plek met veel lichtinval en uitzicht op de rustige straat. De open keuken sluit hier perfect op aan en vormt samen met de bijkeuken een praktisch geheel, ideaal voor wie van koken en gezellig samenzijn houdt. De voormalige garage is volledig geïsoleerd en verwarmd, en is nu ingericht als veelzijdige extra kamer. Deze ruimte leent zich uitstekend als slaapkamer op de begane grond, werkkamer, praktijkruimte of atelier. Zeker een groot pluspunt voor wie flexibiliteit zoekt in wonen en werken. De fraai aangelegde tuin biedt volop rust en privacy en is voorzien van een stenen berging met vliering voor extra opbergruimte. Onder de overkapping is ruimte voor fietsen en motoren. Op de eerste verdieping bevinden zich drie slaapkamers en een moderne badkamer (bouwjaar 2021), stijlvol afgewerkt en voorzien van hedendaags comfort. Kortom: een karaktervolle jaren ’30 woning die niet alleen sfeer en stijl uitstraalt, maar ook verrassend ruimte en flexibiliteit biedt. Perfect voor wie op zoek is naar een authentieke woning met moderne gemakken!
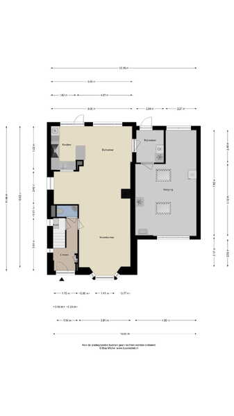
INDELING MET INDICATIEVE MATEN:
BEGANE GROND
Voortuin is voorzien van beplanting en drie leibomen die zorgen voor extra privacy. Verder beschikt de voortuin over sierbestrating en parkeergelegenheid voor een auto op eigen oprit.
Entree, hal met meterkast en trap naar de 1e verdieping, toegang tot keldertje/voorraadkast. De hal is afgewerkt met lambrisering en panelen deuren. Toiletruimte voorzien van een hangend toilet en een hoekfonteintje. De toiletruimte is geheel betegeld in een wit/grijs kleurstelling en is afgewerkt met spotje en afzuigsysteem.
Sfeervolle lichte doorzon woonkamer (ca. 54 m2) voorzien van Amerikaanse eikenhouten vloerdelen en een sfeervolle kachel. De erker creëert niet alleen extra ruimte, maar ook een fijne plek met veel lichtinval en uitzicht op de rustige straat. Dankzij de royale afmetingen van de woonkamer is er plek voor zowel een zit- als een eetgedeelte. Via de woonkamer heeft u toegang tot de bijkeuken en de voormalige garage.
De open keuken is gelegen aan de achterzijde van de woning en is uitgevoerd in een U-opstelling. De keuken is voorzien van een anderhalve spoelbak, koelkast, 5-pits gaskookplaat, RVS afzuigkap, combimagnetron en een vaatwasser. Het geheel is uitgevoerd in houtkleur en afgewerkt met een kunststof aanrechtblad en Amerikaanse eikenhouten vloerdelen. Via een boerderijdeur heeft u toegang tot de achtertuin.
Bijkeuken (ca. 5 m2) met de wasmachine- en drogeraansluiting. De bijkeuken is voorzien van tegelvloer en wandtegels. Via een boerderijdeur heeft u toegang tot de achtertuin. Via de bijkeuken bereikt u de voormalige garage.
De voormalige garage (ca. 30 m2) is geïsoleerd en verwarmd, en is nu ingericht als veelzijdige extra kamer. Deze ruimte leent zich uitstekend als slaapkamer op de begane grond, werkkamer, praktijkruimte of atelier. De garage beschikt verder over twee grote lichtkoepels voor extra daglicht, een uitstortgootsteen, voldoende stopcontacten en wandtegels.
De achtertuin is gelegen op het zuidoosten en is fraai aangelegd met terrassen en sierbeplanting en bomen. Verder is de tuin voorzien van achterom, een geïsoleerd vrijstaande stenen berging en een overkapping met ruimte voor fietsen en motoren en een voor houtopslag.
Vrijstaande stenen berging (ca. 8 m2) voorzien van elektra, stopcontacten, uitstortgootsteen en een vliering bereikbaar middels een vlizotrap. De vliering heeft twee dakramen die zorgen voor voldoende natuurlijk daglicht.
Overkapping 1 (ca. 5 m2) voorzien van elektra en stopcontacten.
Overkapping 2 (ca. 6 m2).
EERSTE VERDIEPING
Ruime overloop met twee bergkasten en een technische ruimte met stelplaats voor de HR C.V. combiketel (Vaillant 2013). Dankzij het dakraam biedt de overloop voldoende natuurlijke lichtinval. Toegang tot alle vertrekken.
Slaapkamer 1 (ca. 17 m2) is gelegen aan de voorzijde van de woning en beschikt over een 4-deuren schuifkastenwand met spotjes. Verder is deze kamer voorzien van vloerbedekking en sfeerverlichting.
Slaapkamer 2 (ca. 12 m2) is gelegen aan de achterzijde van de woning en beschikt over een vaste kast en een dakraam afgewerkt met verduisterend gordijn en zonwering. Toegang tot de bergvliering.
Slaapkamer 3 (ca. 8 m2) is gelegen aan de achterzijde van de woning.
De slaapkamers 2 en 3 zijn afgewerkt met laminaatvloer en spotjes.
Moderne badkamer (ca. 7 m2) met sanitaire voorzieningen zoals een wastafel, verwarmde spiegel met ingebouwde, dimbare LED verlichting, hangend tweede toilet en inloopdouche met regendouche. De badkamer is geheel betegeld en afgewerkt met vloerverwarming, spotjes, afzuigsysteem en een dakraam afgewerkt met verduisterend gordijn en zonwering.
BIJZONDERHEDEN:
- Vrijstaande woning gelegen op een perceel van maar liefst 301 m2 eigen grond;
- Charmante jaren ’30 woning met karakteristieke erker en prachtige details uit die tijd;
- Achtertuin gelegen op het zuidoosten;
- Geïsoleerde stenen berging met extra opbergruime dankzij een vliering;
- Extra overkappingen. Ideaal voor de fietsen, motoren en houtopslag;
- Ruim en licht woongedeelte met een 2 cm dikke Amerikaanse eikenhouten vloer en een sfeervolle kachel;
- De erker creëert niet alleen extra ruimte, maar ook een fijne plek met veel lichtinval;
- De voormalige garage is geïsoleerd en verwarmd, en is nu ingericht als veelzijdige extra kamer;
- Parkeergelegenheid voor een auto op eigen oprit;
- Verwarming en warmwater middels cv ketel Vailant 2013;
- Energielabel B geldig tot 22-10-2035;
- Moderne badkamer met vloerverwarming bouwjaar 2021;
- Gelegen aan de charmante Wilhelmina Geevestraat in Poortugaal met vele voorzieningen op korte afstand bereikbaar;
- Ouderdomsclausule en asbestclausule van toepassing.
MAKELAAR: JAN-HEIN SCHILDERMAN