Ruime eengezinswoning met 4 slaapkamers en dakterras | Zonnige tuin op het zuiden | Instapklaar in kindvriendelijke wijk
Wat een heerlijk huis, strak, modern én ontzettend sfeervol: deze gezinswoning met zonnige tuin en dakterras voelt echt als een warme deken om je heen. En dat op een wel hele fijne plek.
Dit leuke huis ligt in de rustige en geliefde wijk ’s Gravenland, een buurt die bekendstaat om de kindvriendelijke en autoluwe straten, waardoor kinderen hier veilig buiten kunnen spelen. Het groen en de waterpartijen geven de wijk een ontspannen sfeer en maken het heel prettig wonen. Het is een hele gezellige wijk, de bewoners hebben goed contact met elkaar! Op loopafstand vind je speeltuinen, scholen en kinderopvang. Ook voor de dagelijkse boodschappen hoef je niet ver weg: supermarkten, winkels en een apotheek liggen op loopafstand. Wil je wat uitgebreider shoppen of een avondje uit zit je binnen enkele minuten in het centrum van Rotterdam of bij winkelcentrum Alexandrium. Het Kralingse Bos en het Prinsenpark liggen in de directe omgeving en bieden volop mogelijkheden voor sport, recreatie en ontspanning. Kortom: een wijk met rust en ruimte, maar toch midden in de stadse voorzieningen.
De ligging is zeer centraal: metro en bus vind je om de hoek en met de fiets sta je snel in hartje Rotterdam. De uitvalswegen A16 en A20 zijn binnen enkele minuten bereikbaar en voor de dagelijkse boodschappen zijn er winkels en supermarkten op loopafstand. Ook Alexandrium is slechts 5 minuten rijden.
Gerard van Houweningepad 6
Je parkeert je auto op de Jan Beyerinckstraat waar je ook de mogelijkheid hebt om je auto te laden aan een openbare laadpaal. Dan loop je het Gerard van Houweningepad op. Een pad, ideaal, dat betekent geen auto’s die langs je keukenraam rijden. Je stapt door je voortuin naar de voordeur en komt binnen in de hal. Een fijne ruime en lichte hal waarvan de indeling wat veranderd is en daarmee een stuk ruimer is geworden. Er is een grote kast gebouwd om de jassen en schoenen op de bergen en om de hoek treffen we ook gelijk het eerste toilet.
Dan lopen we via de glazen deur de woonkeuken in. Wat een heerlijke ruimte! Superveel licht en de ruimte straalt een zekere rust uit waardoor je je direct thuis voelt. Dit is een hele lekkere vibe!
De keuken is in een L-vorm geplaatst en voorzien van diverse inbouwapparatuur zoals een grote 5 pits gaskookplaat met afzuigkap erboven, combi-oven, koel- vriescombinatie, een spoelbak met mengkraan en de vaatwasmachine. Er is veel ruimte in de kastjes en tegen over de keukenopstelling is in de wand nog een mooie kast verwerkt waar de koel- vriescombinatie is verwerkt. De woonkeuken loopt naadloos over in de living. Erg mooi gedaan, een heerlijke plek om lekker wat TV te kijken, een boek te lezen of met je gasten even bij te kletsen. Als het tenminste geen tuinweer is, want dan kan het bijna niet anders dan dat je in de tuin te vinden bent.
Het voelt gewoon een beetje als vakantie in deze mooie en doordacht aangelegde tuin. Er is een goede indeling gemaakt waarbij er een fijne plek is om lekker te eten, een plek om te chillen en een plekje om de BBQ op te stoken. Aan de achterzijde een grote schuur voor de fietsen en je tuingereedschap en via de achterdeur in de schuur sta je achter op het speelpleintje, ideaal voor de kids.
Terug in de woonkamer lopen we via de open trap naar de eerste verdieping waar we een drietal slaapkamers treffen. Een ruime slaapkamer van 15 m2 en twee kamers aan de voorzijde van respectievelijk 11 en 6 m2. Op de overloop hebben we toegang tot de moderne strakke badkamer voorzien van het tweede toilet, een ruime inloopdouche met glazen schuifdeur en een grote dubbele wastafel met mengkranen en een grote spiegel erboven. In het plafond zijn spots verwerkt.
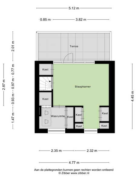
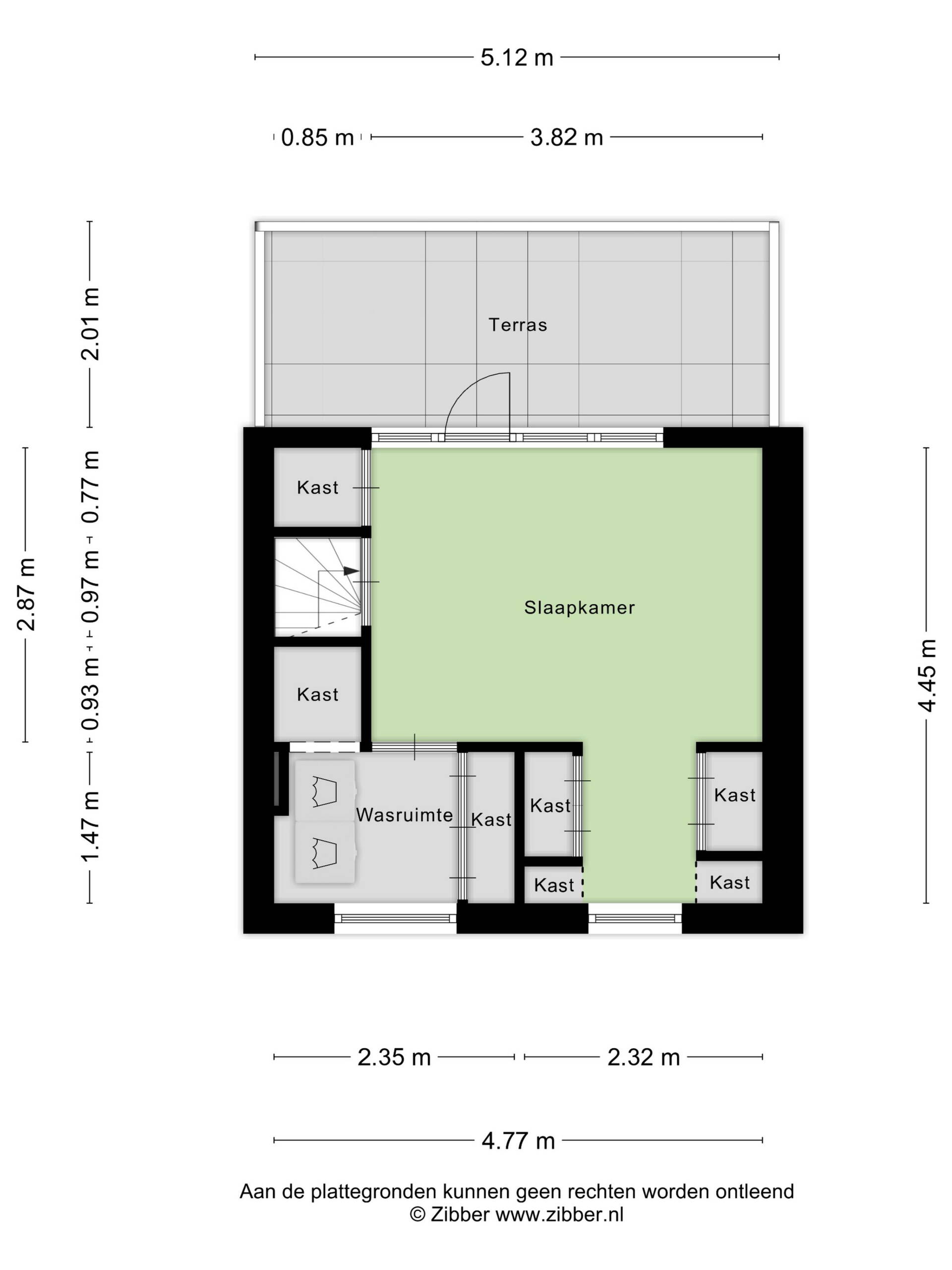
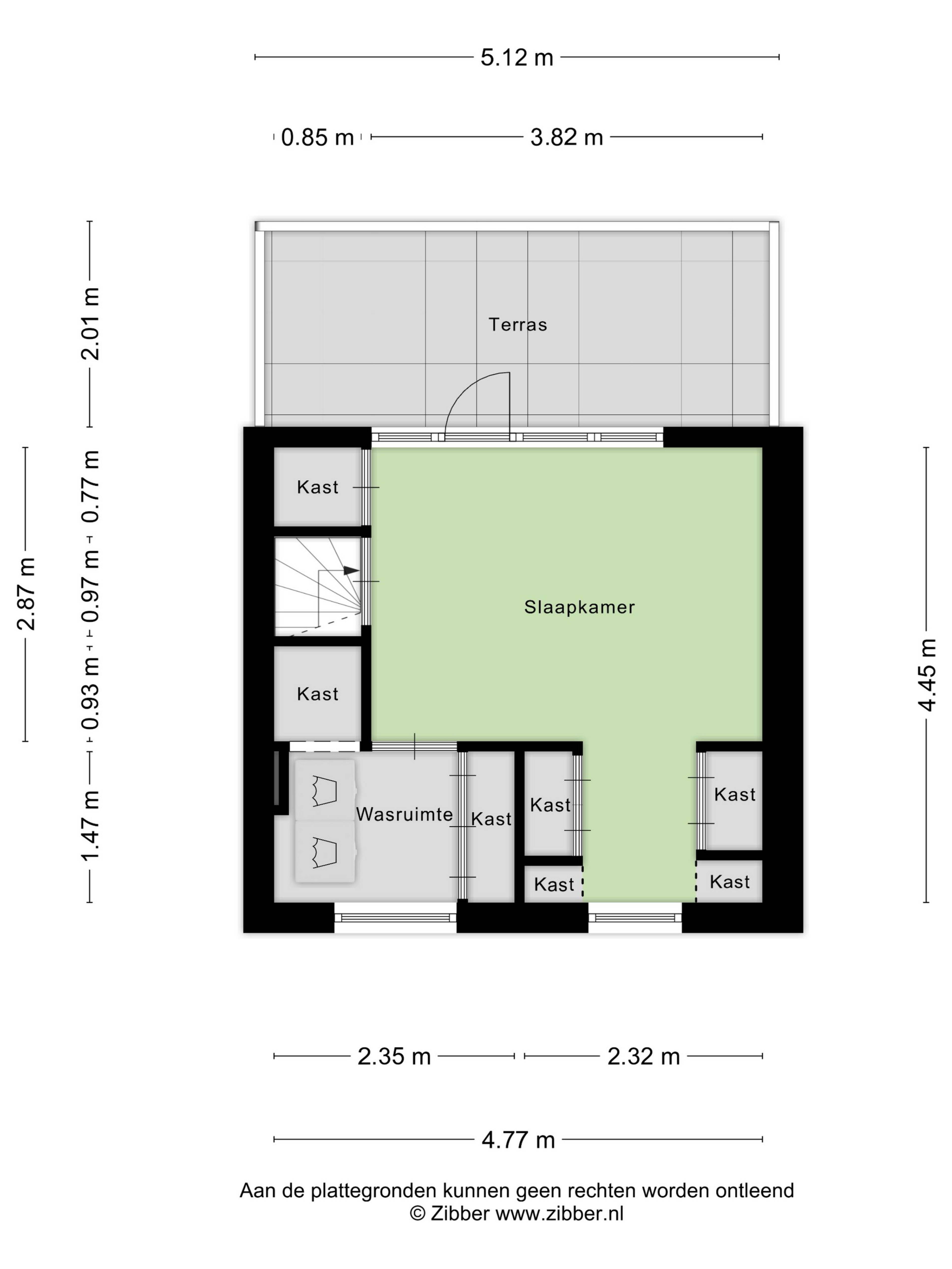
We lopen met de trap naar de tweede verdieping. Een prachtige opbouw waar een riante slaapkamer is gebouwd die in de zomer wel wat verkoeling kan gebruiken, vandaar de airco. Een hele fijne rustgevende kamer met een grote pui aan de achterzijde om op het dakterras te komen. Een mooie plek voor een kop koffie in de ochtend, in de middag heerlijk even ongestoord in de zon te liggen, maar ook een mooie plek om je was in no-time droog te krijgen.
Terug in de slaapkamer waar ook de verlichting in het plafond is verwerkt treffen we een en-suite inloopkast, een aparte bergkast en een grote extra ruimte waar de wasmachine en droger zijn opgesteld en waar een grote kledingkast is ingebouwd.
Met energielabel A, vloerisolatie, dak- en muurisolatie, HR- en zelfs HR+++ glas, plus een Atag cv-ketel uit 2019, woon je hier energiezuinig en comfortabel. Daarnaast beschikt de woning over airconditioning, buitenzonwering en een fraai aangelegde tuin met achterom. In de voortuin heb je plek voor de containers en voor bijvoorbeeld de scooter.
Kortom: een instapklare gezinswoning met vakantie-vibes, zonnige tuin én dakterras, op een fantastische plek in Rotterdam. Plan snel een bezichtiging en ontdek zelf dit unieke huis!
Kenmerken:
• Bouwjaar: 1991
• Woonoppervlakte: ca. 108 m²
• Perceeloppervlakte: ca. 126 m²
• Inhoud: ca. 384 m³
• 4 slaapkamers
• Zonnige tuin van ca. 69 m² op het zuiden met achterom
• Fraai dakterras op het zuiden
• Energielabel A
• Verwarming en warm water middels Atag HR CV-ketel (2019, eigendom)
• De woonkamer is voorzien van vloerverwarming
• Airconditioning op de tweede verdieping
• Zonwering op de begane grond aan de achterzijde
• Het grootste deel van de ramen is in 2025 vervangen voor kunststof kozijnen met HR+++ glas
• Grote nieuwe schuifpui naar de tuin
• Gelegen op erfpachtgrond afgekocht tot 18-12-2040 en lopend tot 18-12-2089
• Oplevering in overleg
RE/MAX, it’s the experience!
Ons advies bij het kopen van uw nieuwe woning? Neem uw eigen aankoopmakelaar mee!