Klussers opgelet | Hartje Historisch Delfshaven | casco dubbel benedenhuis | tuin van ca. 37 m² op het zuidwesten
Ooit helemaal je eigen droomwoning willen creëren? Stay tuned! Een kans als deze krijg je niet vaak in je schoot geworpen.
Historisch Delfshaven: stadse charme met karakter
Ontdek Historisch Delfshaven – een bijzonder goed bewaard geheim van Rotterdam! Hier vind je sfeervolle straatjes, eeuwenoude grachten, hippe koffietentjes en creatieve hotspots, allemaal doordrenkt met karakter en geschiedenis. Kortom, in Delfshaven voel je de energie van de stad én de charme van vroeger.
Wonen in Delfshaven betekent leven in een buurt waar oud en nieuw moeiteloos samenkomen. Geniet van gezellige borrels aan het water, inspirerende kunst en cultuur om de hoek, en een relaxte stadse vibe die je nergens anders vindt. Plus: je bent in no time in hartje Rotterdam – met de metro, fiets of zelfs wandelend. Vanaf hier loop je zo het Dakpark op en sta je op de Parkboulevard, waar je boodschappen kunt doen bij onder andere Albert Heijn, Xenos, Woonoutlet en Action. Loop je de andere kant op richting de Schiedamseweg, dan doe je boodschappen bij Jumbo of Dirk. Op de Schiedamseweg stap je ook op de tram of in de metro in alle richtingen, en met de auto zit je binnen vijf minuten op de snelweg. In Historisch Delfshaven ontmoet je je vrienden in de kroeg en eet je een hapje in een van de gezellige restaurantjes.
Het appartement
Daar kunnen we kort over zijn: helemaal zoals jij het wilt!
Maar je kunt je er vast al iets bij voorstellen. De basis is gelegd: de benedenverdieping is voorzien van een splinternieuwe vloerbak die waterdicht is afgewerkt. Daarnaast is er een volledig nieuwe verdiepingsvloer gelegd, zodat jij de ultieme basis hebt om dit geheel naar eigen wens in te delen en af te bouwen.
Zie je het al voor je? Je loopt de voordeur binnen, hangt je jas op en neemt de trap naar boven. Daar kom je aan in de woonkamer – een heerlijk lichte ruimte met aan de voorzijde je eetkamer. Tactisch, want aan de achterzijde is je woonkamer wat breder, wat hem geschikter maakt als zitgedeelte. In het tussenstuk staat een fantastische open keuken met een groot kookeiland waar je met z’n drieën aan kunt zitten. Aan de achterzijde heb je een toffe zithoek gecreëerd waar je iedere dag weer met een grote glimlach op de bank neerploft – dit heb je zó tof bedacht! Helemaal achterin, naast het balkon, is nog een hoek waar je een kleine werkplek hebt gemaakt voor de dagen dat je thuiswerkt.
De achterpui heb je volledig vervangen door een glazen pui, voor optimaal veel licht in huis. Op deze verdieping stap je via het balkon de tuin in, maar ook vanuit de hoofdslaapkamer op de begane grond aan de achterzijde loop je zo naar buiten.
Waar je de trap naar beneden plaatst, is helemaal aan jou. Er is al een trap aanwezig op een mooie plek, maar er is ook een uitsparing opengehouden zodat je daar een toffe draaitrap kunt plaatsen. Die zijn vaak open en superstijlvol, zodat de trap optimaal aansluit op je ontwerp.
Beneden heb je aan de achterzijde een fijne slaapkamer gemaakt met die mooie inbouwkast waar je altijd al van droomde. Aan de voorzijde bevindt zich de tweede slaapkamer. Tussen de twee slaapkamers vind je de riante badkamer, met een mooi ligbad, een ruime dubbele douche, en een natuurstenen dubbele wastafel met een stijlvol meubel en een grote verwarmde spiegel erboven.
Wat een moddervette plek is dit geworden! Iedere keer als je vrienden binnenstappen, hebben ze het er weer over. Dit kon je maar één keer écht goed doen – en die kans heb je met beide handen aangegrepen.
Wordt dit jouw verhaal? Let me know en kom snel even kijken!
Bijzonderheden
- Droomhuis to be
- Eigen grond
- Bouwjaar 1912
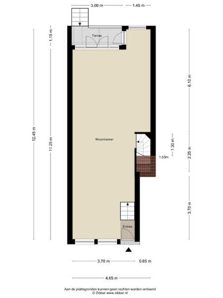
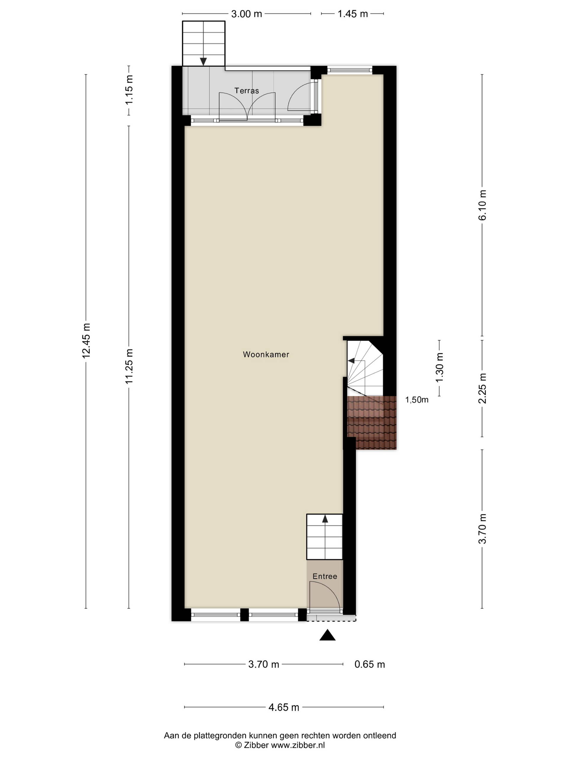
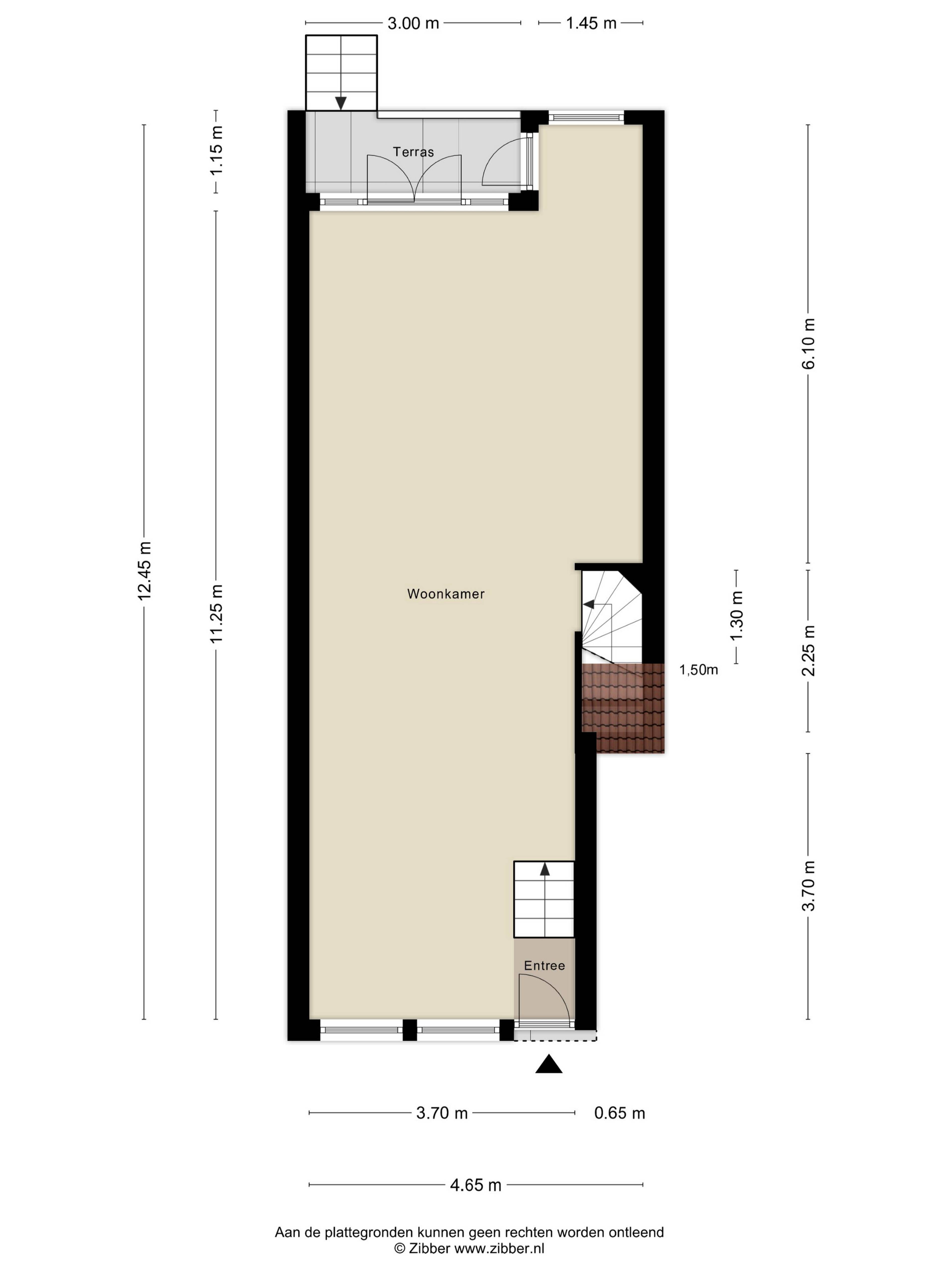
- Woonoppervlakte circa 102 m²
- Tuin van ruim 37 m² op het zuidwesten
- Energielabel C
- Volledig voorzien van dubbel glas in houten kozijnen
- Gelegen in hartje Historisch Delfshaven
- Parkeren met vergunning: € 9,20 per maand
- Voor de overdracht is Ligthelm & Dekker als projectnotaris aangewezen
- In de koopovereenkomst nemen we een niet zelf bewoond clausule op en een ouderdomsclausule
- Omdat de woning verkocht wordt door een belegger zijn er geen vragenlijst e lijst van zaken beschikbaar
- De VvE is in oprichting, de bijdrage zal € 124,39 per maand worden
- Oplevering in overleg
Ons advies bij het kopen van je nieuwe woning? Neem je eigen aankoopmakelaar mee!
RE/MAX, it’s the experience!