Dubbele bovenwoning zonder bovenburen | 3 volwaardige slaapkamers | Balkon op het zuiden | Energielabel B
Wonen in het centrum van Rotterdam, maar dan wél met rust, ruimte en geen bovenburen? Stroveer 266 combineert het allemaal. Deze verrassend ruime maisonnette is verdeeld over twee woonlagen, heeft drie échte slaapkamers (ja, met rechte muren!) en ligt in het groene en speels opgezette Heliport-complex.
Buurt – Heliport
Heliport – ook wel bekend als Kabouterdorp – is zo’n plek waar je je niet direct in hartje stad waant. Autovrije straatjes, veel groen, waterpartijen en een fijn binnenplein zorgen voor een rustige sfeer. En toch wandel je binnen een paar minuten naar Rotterdam Centraal, de Hofbogen, de Meent, de Markthal of een van de vele koffietentjes en restaurants. Rustig wonen, midden in de stad: dit is precies die zeldzame combinatie.
Bereikbaarheid
De ligging is ronduit ideaal. Station Rotterdam Centraal ligt letterlijk om de hoek, net als tram, metro en bus. Met de auto zit je zó op de A13, A16 of A20. Of je nu in de stad werkt of daarbuiten: je bent overal snel.
Stroveer 266
Via de galerij stappen we achter de voordeur de hal binnen, daar treffen we direct rechts een deur die naar de eetkamer & open keuken leidt. Maar we lopen rechtdoor langs het toilet en de meterkast zo de woonkamer in. De woonkamer is heerlijk licht en met 27 m2 lekker ruim. In de woonkamer is ruimte voor een grote zithoek en een extra zitje, de eettafel hoef je er niet kwijt, die kan je kwijt aan de andere kant van de keuken.
Vanuit de woonkamer kan je aan de voorzijde via 2 deuren het balkon op. Het balkon is lekker ruim (8m2) en vrij diep waardoor je eenvoudig een eettafel of loungeset kwijt kunt. Je zit op het zuid-oosten, heerlijk op de zon. Vanaf het balkon kijk je zo op de Lombardkade.
Terug in de woonkamer loop je langs de trapkast waar je nog aardig wat in kwijt kunt.
Dan lopen we de open keuken in. De open opzet zorgt voor een heel ruimtelijk gevoel en maakt het een gezellige plek om te koken. Je hebt altijd verbinding met zowel de eetkamer als de woonkamer.
De keuken is voorzien van een ingebouwde vaatwasmachine, magnetron, anderhalve spoelbak en een elektrische kookplaat met afzuigkap erboven. En zoals net al verteld, aan de voorzijde is een hele mooie plek voor een grote eettafel.
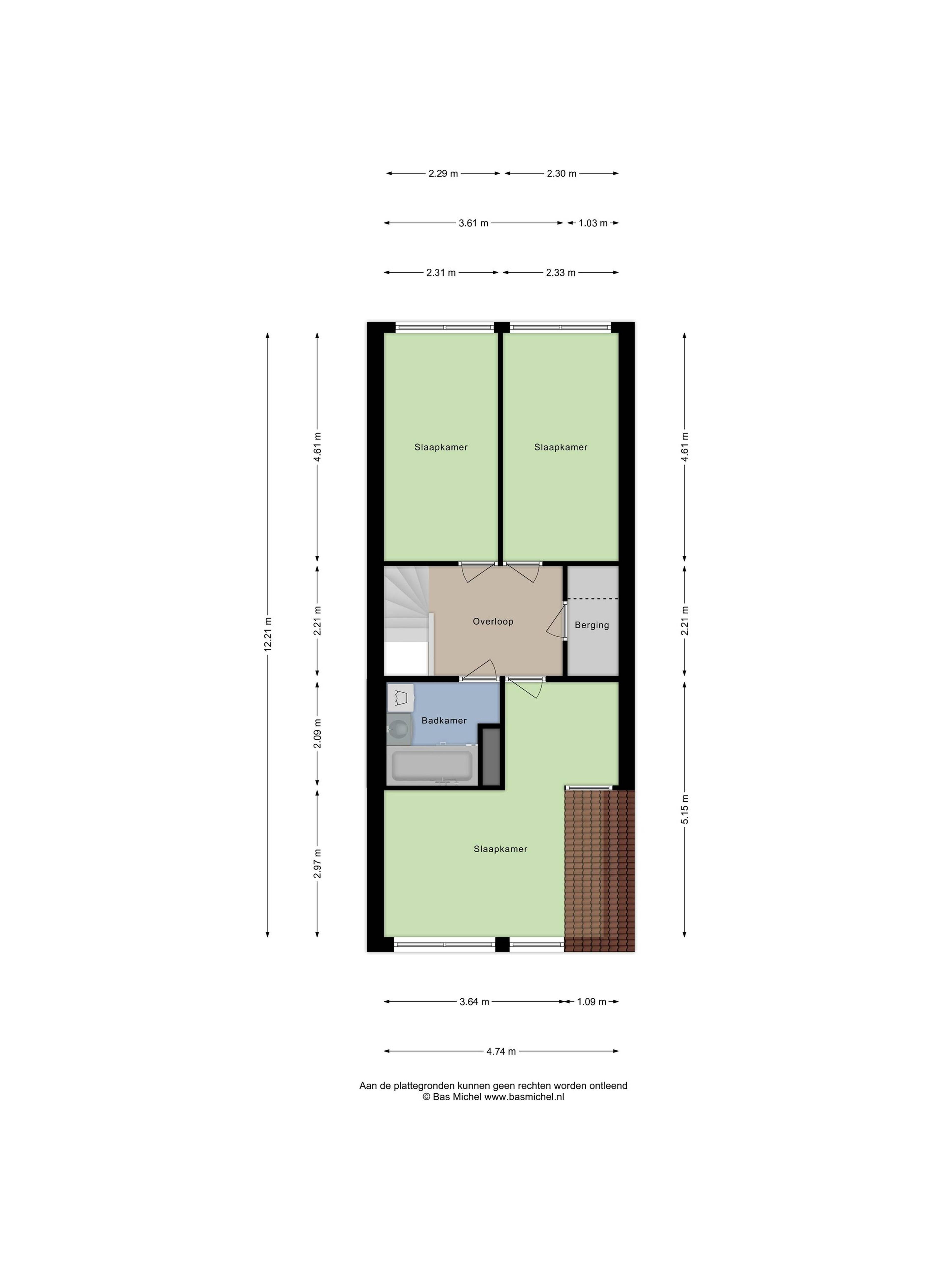
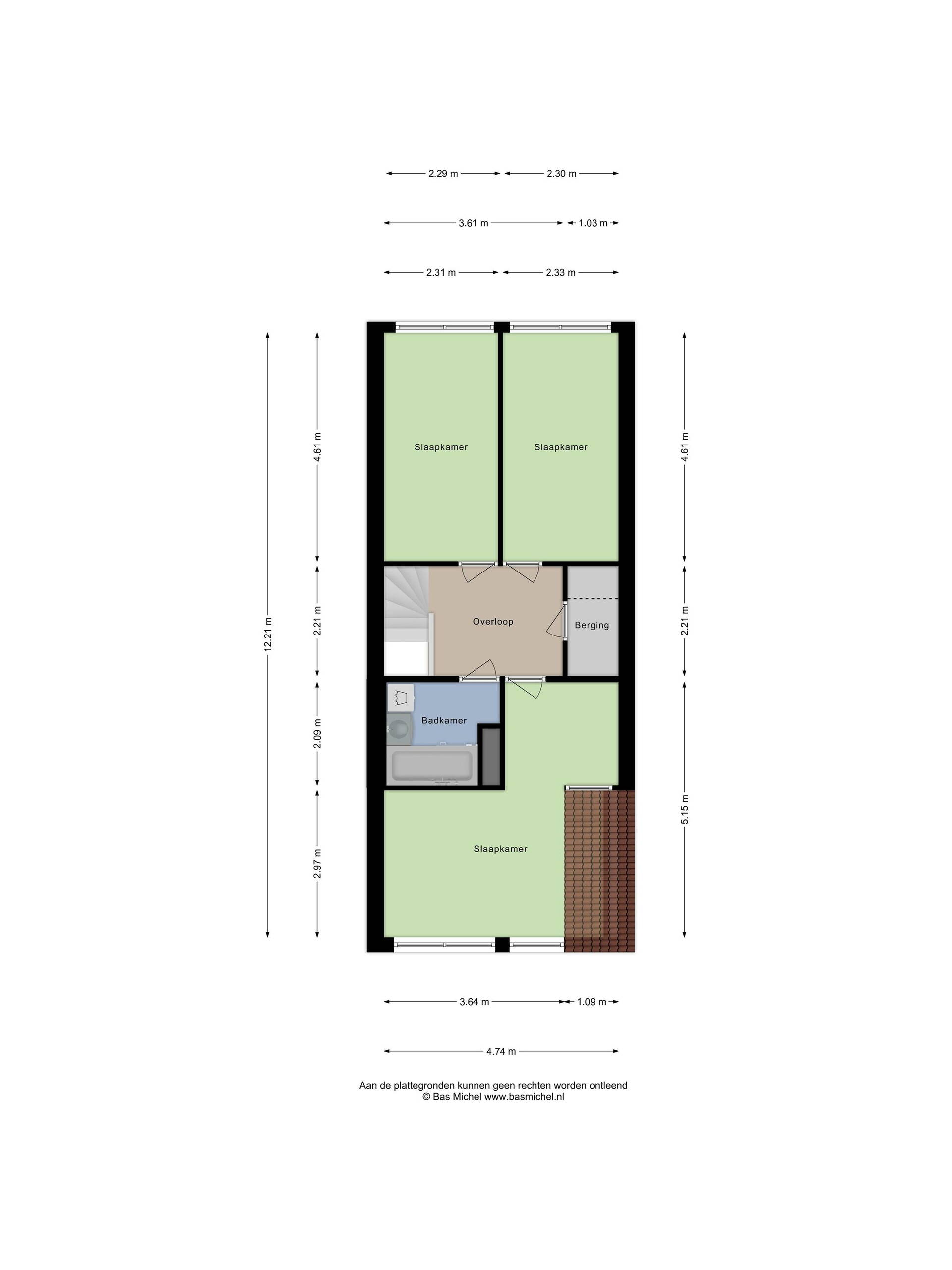
Slaapverdieping
Via de trap lopen we naar boven waar we aankomen op de ruime overloop die toegang geeft tot drie ruime slaapkamers en de badkamer. Een enorm pluspunt van deze woning: alle slaapkamers hebben rechte muren. De meeste bovenwoningen met schuine daken hebben schuine wanden. De kap van dit appartementen is aan beide kanten opgetrokken, dus geen loze hoeken – maar kamers waar moeiteloos een tweepersoonsbed tegen een rechte muur past. Dat is zeldzaam én super praktisch.
De slaapkamers zijn respectievelijk 11, 11, en 16 m2 groot waarbij de grootste is gelegen aan de achterzijde met leuk uitzicht over het water.
De badkamer is netjes en compleet uitgevoerd met een ligbad/douchecombinatie, wastafelmeubel en aansluiting voor de wasmachine.
Uitermate handig, op de overloop heb je toegang tot een verrassend grote kast van 2,21 x 1,03. Een perfecte kast voor het opbergen van koffers, zomer of winterkleding, noem maar op.
Extra’s
Daarnaast beschikt de woning over een eigen inpandige berging in het gebouw – ideaal voor fietsen, koffers of seizoensspullen. De woning maakt deel uit van een actieve en goed georganiseerde VvE.
Kortom
Een lichte, ruime en slimme bovenwoning op een unieke plek in Rotterdam. Ideaal voor wie midden in de stad wil wonen, maar geen concessies wil doen aan ruimte, rust en comfort.
Kenmerken
– Bouwjaar 1985
– Woonoppervlakte ca. 106 m²
– Er zijn diverse liften in het complex aanwezig
– Naast trappenhuizen zijn er diverse "ramps" om je fiets boven te krijgen in de berging
– Verdeeld over 2 woonlagen
– 3 volwaardige slaapkamers met rechte muren
– Geen bovenburen
– Balkon van ca. 8 m² op het zuiden
– Eigen berging van ca. 7 m²
– Energielabel B
– Volledig voorzien van dubbele beglazing
– Verwarming en warm water via stadsverwarming
– Actieve VvE, bijdrage ca. € 267,92 per maand
– Erfpacht is voor de gehele looptijd afgekocht (tot 2054)
– Oplevering in overleg
RE/MAX, it’s the experience.
Ons advies bij het kopen van uw nieuwe woning? Neem uw eigen aankoopmakelaar mee!