Algemeen
Omschrijving
Welkom bij deze instapklare hoekwoning aan de Gorzenhof 4 in Capelle aan den IJssel. De woning beschikt over maar liefst zes kamers en een riante tuin, waardoor binnen- en buitenleven prettig in elkaar overlopen. Een fijne plek om direct te kunnen wonen en genieten.
De woning ligt in een rustige en kindvriendelijke wijk in Middelwatering Oost te Capelle aan den IJssel. In de directe omgeving zijn meerdere basisscholen en onderwijsinstellingen te vinden, waaronder uiteenlopende openbare en bijzondere basisscholen. Er zijn onder meer voorzieningen zoals Kindcentrum De Triangel, OBS De Wonderwind en Christelijke Basisschool de Fontein binnen relatief korte afstand, wat gunstig is voor gezinnen met kinderen. Daarnaast zijn er verspreid in de buurt verschillende speelplekken en groenstroken waar kinderen veilig kunnen spelen en ouders eenvoudig een oogje in het zeil kunnen houden.
Voor de dagelijkse boodschappen en het winkelaanbod zitten u hier goed. Op korte afstand zijn diverse buurtwinkels en supermarkten aanwezig. Ook winkelcentra zoals De Koperwiek, De Terp, Picassopassage en de woonboulevard CapelleXL liggen binnen fietsafstand en bieden een breed scala aan winkels, diensten en horecagelegenheden. Hierdoor zijn boodschappen, services en dagelijks noodzakelijke voorzieningen eenvoudig te bereiken, zowel lopend als per fiets.
In de directe en wat bredere omgeving zijn diverse groenzones en parkgebieden te vinden, ideaal voor ontspanning, wandelen, sport of een buitenmoment met kinderen. Populaire plekken in de regio zijn onder meer Schollebos, een groot natuurgebied met wandelpaden en speelplekken, en lokale parken zoals groenstroken in de wijk zelf. Voor uitstapjes of langere natuurervaringen liggen er in de regio nog meer recreatiegebieden, wat bijdraagt aan een prettige balans tussen wonen en buiten zijn.
Het openbaar vervoer is goed geregeld. Op loopafstand (ca. 7 minuten lopen) liggen haltepunten zoals Capelle Aan Den IJssel, Kerklaan, met buslijnen in verschillende richtingen naar o.a. Rotterdam en omliggende wijken. Andere haltes zoals Duikerlaan liggen ook op paar minuten lopen, en bieden extra verbindingen. Voor metroverbindingen zijn stations zoals Capelle Centrum en De Terp bereikbaar binnen fietsafstand, met directe metro’s richting Rotterdam en verder (lijn C). Ook het treinstation Capelle Schollevaar is goed te bereiken.
Qua bereikbaarheid per auto is de ligging eveneens gunstig. De uitvalswegen en snelwegen richting onder meer Rotterdam, Dordrecht en andere omliggende steden zijn vlot bereikbaar, waardoor woon-werkverkeer en uitstapjes eenvoudig verlopen.
Welkom
Bij aankomst wordt u verwelkomd door de moderne, betegelde voortuin die leidt naar de kunststof voordeur. Deze entree geeft direct een goede eerste indruk en past bij het instapklare karakter van de woning.
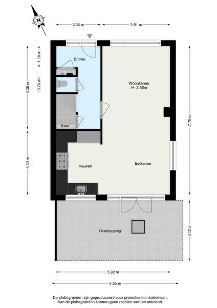
Via de voordeur komt u binnen in de hal, die ruim is opgezet en meer dan voldoende ruimte biedt voor het opbergen van jassen en schoenen. Vanuit hier loopt u door naar het woongedeelte.
De gehele begane grond is afgewerkt met een prachtige visgraatvloer van tegels en is voorzien van vloerverwarming, wat zorgt voor een comfortabele en gelijkmatige warmteverdeling. Alle wanden en plafonds zijn strak gestuct en afgewerkt, waardoor de woning direct netjes en verzorgd aanvoelt.
De woonkamer is heerlijk licht dankzij de grote raampartijen en het extra zijraam, wat kenmerkend is voor deze hoekwoning. Het daglicht zorgt voor een open en prettige sfeer en er is volop ruimte voor een comfortabele zithoek en een royale eethoek.
De open keuken sluit naadloos aan op de woonkamer en is modern uitgevoerd. De keuken beschikt over witte kasten, een zwart aanrechtblad en een achterwand met een visgraatmotief, wat het geheel een stijlvolle uitstraling geeft. De keuken is voorzien van diverse apparatuur, waaronder een vaatwasser, koelkast, vriezer en afzuigkap. Daarnaast is er een vrijstaand 5-pits gasfornuis met oven aanwezig. Er is voldoende opbergruimte voor keukengerei en voorraad. Een groot raam in de keuken biedt prettig uitzicht over de tuin en zorgt ook hier voor veel natuurlijk licht.
De achtertuin is verzorgd, stijlvol aangelegd en vormt een verlengstuk van het wooncomfort binnen. De tuin is gelegen op het zuidwesten, waardoor u hier tot in de avond van de zon kunt genieten. De tuin is grotendeels bestraat met dezelfde tegels als in de voortuin, wat zorgt voor een rustig en samenhangend geheel. Door de slimme indeling is er volop ruimte om op verschillende momenten van de dag van buiten te genieten.
Direct aan de woning bevindt zich een royale overkapping met een lichtkoepel, waardoor er veel daglicht binnenvalt en u hier het hele jaar door comfortabel kunt zitten. Onder de overkapping zijn twee fijne zithoeken gecreëerd, ideaal voor zowel een ontspannen koffiemoment als een lange zomeravond.
In de tuin zijn diverse verhoogde, ingebouwde plantenbakken aangebracht, die zorgen voor groen en sfeer. Centraal in de tuin bevindt zich een kleine vijver met vissen, wat een rustgevend en bijzonder element toevoegt aan het geheel.
Achterin de tuin zijn meerdere praktische voorzieningen aanwezig. Zo is er een overkapping voor het stallen van fietsen of een scooter, een aparte overkapping voor het neerzetten van spullen en daarnaast een stenen berging voor extra opslagruimte. De tuin is rondom afgewerkt met een antracietkleurige schutting, voorzien van sfeerverlichting. Via een deur in de schutting is er een directe uitgang naar de straatzijde, wat extra gemak biedt.
Vanuit de hal zijn de meterkast, de trapkast en het toilet bereikbaar. De hal biedt daarnaast toegang tot het woongedeelte en de trap naar de eerste verdieping.
Het toilet is modern uitgevoerd en volledig betegeld. Een van de wanden is afgewerkt met decoratietegels, wat zorgt voor een stijlvol accent. Het toilet is voorzien van een zwevend toilet en een wastafel.
De trap naar de eerste verdieping is bereikbaar vanuit de hal en vormt een praktische en overzichtelijke verbinding met de slaapverdiepingen.
Eerste verdieping
De eerste verdieping beschikt over vier slaapkamers en de badkamer. Deze verdieping is afgewerkt met een lichte laminaatvloer, wat zorgt voor een rustige en verzorgde uitstraling.
Aan de voorzijde van de woning bevinden zich twee slaapkamers. Een van deze kamers is ideaal te gebruiken als baby- of kinderkamer maar leent zich ook uitstekend als kantoor of hobbyruimte. De tweede slaapkamer aan deze zijde is ruimer van opzet en biedt voldoende plaats voor een tweepersoonsbed.
Aan de achterzijde bevinden zich eveneens twee slaapkamers. Een van deze kamers wordt momenteel gebruikt als kasten- of kleedkamer, terwijl de andere slaapkamer ruim van formaat is en eveneens geschikt is voor een tweepersoonsbed. Dankzij de praktische indeling zijn alle kamers flexibel in te richten en geschikt voor verschillende woonwensen.
De badkamer is volledig betegeld en uitgevoerd in dezelfde stijl als het toilet op de begane grond, wat zorgt voor een mooi en samenhangend geheel. De badkamer is voorzien van een inloopdouche en een wastafel. Daarnaast wordt de ruimte verwarmd middels een radiator, wat bijdraagt aan comfort en gebruiksgemak.
Tweede verdieping
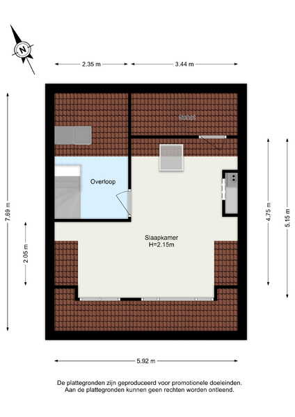
De tweede verdieping bestaat uit de voorzolder en een zeer royale slaapkamer. Op de voorzolder zijn de aansluitingen voor de wasmachine en droger aanwezig, waardoor deze verdieping ook praktisch in gebruik is.
De slaapkamer op deze verdieping is opvallend ruim dankzij de dakkapel die over de volledige breedte van de woning is geplaatst. Hierdoor is er niet alleen veel extra ruimte ontstaan, maar ook een prettige hoeveelheid daglicht. Aan de voorzijde is daarnaast een Velux dakraam aanwezig, wat zorgt voor extra lichtinval en ventilatiemogelijkheden.
De ruimte is slim en speels ingedeeld, waarbij optimaal gebruik is gemaakt van de schuine kap en de holle ruimtes. Zo is er een maatwerk kastenwand gerealiseerd, waardoor de beschikbare ruimte efficiënt wordt benut en er veel opbergruimte aanwezig is zonder dat dit ten koste gaat van de leefruimte. De dakkapel is voorzien van rolluiken, wat bijdraagt aan comfort en privacy.
Inbouwspots zorgen voor een prettige verlichting en maken deze verdieping compleet. Dankzij de royale afmetingen, de slimme indeling en de hoeveelheid licht is deze verdieping uitermate geschikt als volwaardige hoofdslaapkamer, maar kan de ruimte ook uitstekend dienen als werk- of hobbyruimte.
Goed om te weten
De woning is gebouwd in 1964 en is in 2017 volledig gerenoveerd. Tijdens deze renovatie is het oude zand-/cementstucwerk in de gehele woning volledig verwijderd en opnieuw aangebracht. Ook zijn alle onderdelen van de elektrische installatie vervangen, wat bijdraagt aan veiligheid en wooncomfort.
De begane grond is voorzien van vloerverwarming en de vloer is na-geïsoleerd met 9,5 cm polyurethaan isolatie, waarvan een certificaat aanwezig is. De woning beschikt over energielabel C. In 2023 zijn er 10 zonnepanelen geplaatst, welke in eigendom zijn en bijdragen aan lagere energielasten.
De gevel van de woning is gestraald en opnieuw gevoegd. De platte daken zijn 9 oud. Ook de kunststof kozijnen zijn ongeveer 9 jaar geleden geplaatst en zijn voorzien van HR++ glas, wat zorgt voor goede isolatie en onderhoudsgemak.
De keuken en de badkamer zijn beide vernieuwd in 2017 en uitgevoerd in een moderne, tijdloze stijl.
De dakkapel op de tweede verdieping is voorzien van rolluiken, wat zorgt voor extra comfort en privacy.
Bijzonderheden
-Bouwjaar 1964
-Volledig gerenoveerd in 2017
-Energielabel C
-10 zonnepanelen in eigendom (2023)
-Vloerverwarming begane grond
-Vloerisolatie 9,5 cm polyurethaan (certificaat aanwezig)
-Gevel gestraald en opnieuw gevoegd
-HR++ beglazing
-Volledige elektrische installatie vernieuwd
-Keuken vernieuwd in 2017
-Badkamer vernieuwd in 2017
-Dakkapel voorzien van rolluiken
-Glasvezel aanwezig
-Cv-ketel Remeha Avanta in eigendom (bouwjaar 2013) laatste onderhoudscontrole december 2025
Kenmerken
Adres
2903 ED CAPELLE AAN DEN IJSSEL
Prijs
Details
Indeling
Tuin
Garage
Bergruimte
Energielabel
Downloads
Uw makelaar
Maxelle Quint
Geïnteresseerd in deze woning? Vul dit formulier in voor een bezichtiging van deze woning of voor meer informatie. Dan nemen wij zo snel mogelijk contact met u op.



















