Goudriaan | 139 m² | Magnifiek uitzicht | Energielabel A
Wat een fantastisch huis is dit! Zo’n woning waar je binnenstapt en je je meteen thuis voelt. Dat is niet gek, want hier is met heel veel liefde en aandacht gewoond – zowel in het huis als in de tuin. Daar komt bij dat je aan de achterzijde vanuit elke ruimte mijlenver wegkijkt over de weilanden. Dat geeft een immens gevoel van vrijheid waar je geen genoeg van krijgt.
Wonen in Goudriaan
Wonen in Goudriaan betekent genieten van de rust en ruimte van het polderlandschap, en toch woon je heel centraal. Voor de dagelijkse boodschappen kun je terecht in Giessenburg, Molenaarsgraaf, Nieuwpoort en Gorinchem, waar je onder andere een supermarkt, bakker en slager vindt. In Goudriaan zelf is een basisschool aanwezig en middelbare scholen zijn goed bereikbaar in onder andere Gorinchem, Ottoland en Schoonhoven. Het dorp is goed bereikbaar via de N216 en ligt gunstig ten opzichte van de A27 en A15. Er zijn diverse busverbindingen met nabijgelegen plaatsen en in Gorinchem stap je op de trein. Goudriaan is daarmee een ideale plek voor gezinnen en rustzoekers die landelijk willen wonen, zonder ver weg te zijn van de stad!
Dan de Van Assendelftstraat nummer 9
Zoals eerder gezegd: echt een heerlijk huis. Je parkeert je auto voor de deur, hangt deze eventueel aan je eigen laadpaal en kijkt even in de voortuin of er nog iets bijgeknipt moet worden. De voortuin staat volop in bloei en als tuinliefhebber zet je hier straks graag nog even de puntjes op de i. De tuin is al bijna 50 m² groot en mooi aangelegd – genoeg te doen dus!
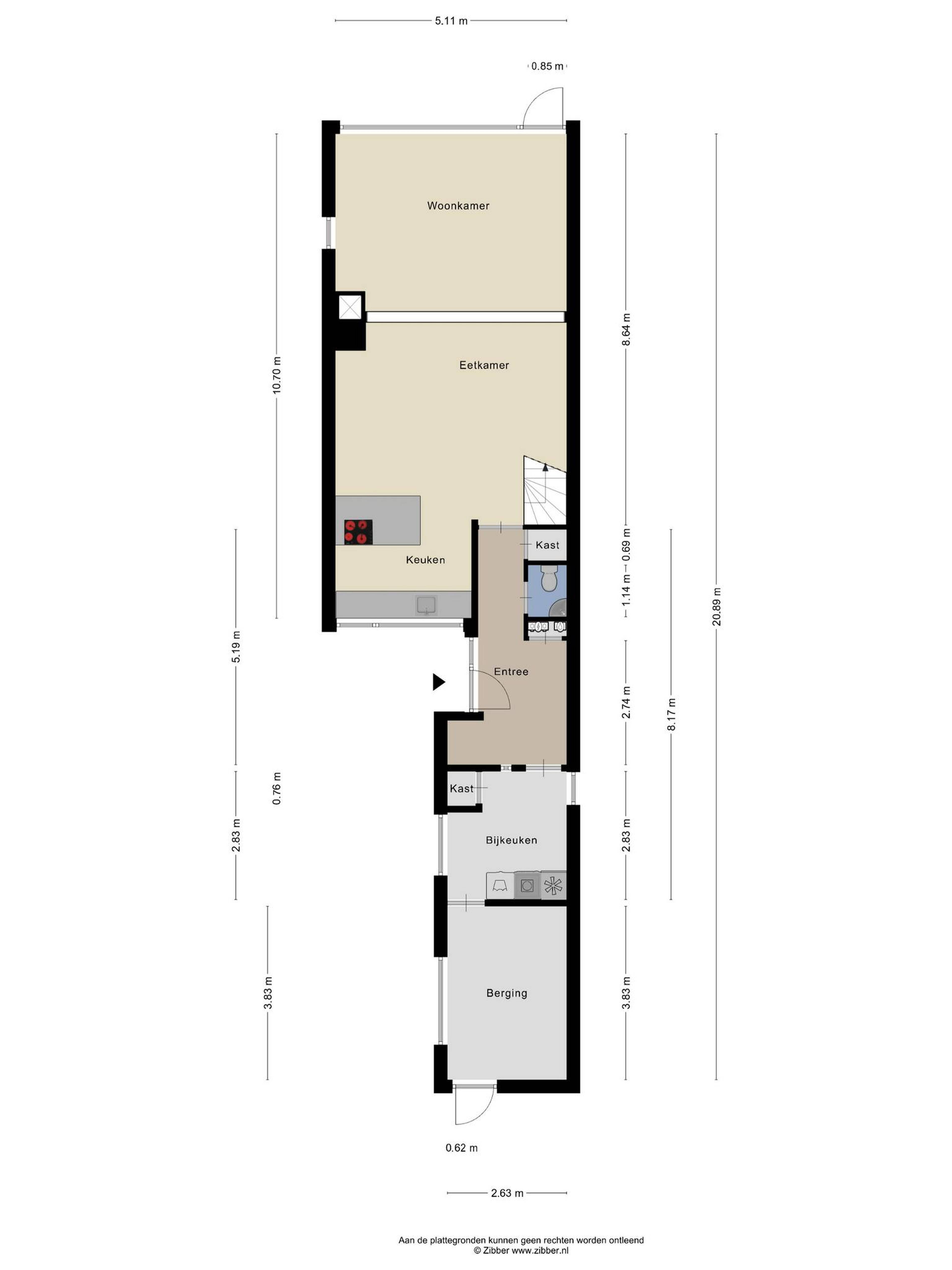
Dan loop je over het pad naar de voordeur en hang je in de hal je jas op.
In de ruime hal vinden we het toilet, de meterkast en een aparte bergkast. Aan de voorzijde is toegang tot de bijkeuken en de berging, maar daarover later meer.
We lopen over de marmeren vloer de woonkamer in. Wat als eerste opvalt is het waanzinnige uitzicht over de polder, zichtbaar vanuit de hele woonkamer en keuken. Het is net een enorm schilderij.
De marmeren vloer geeft een luxe uitstraling, is makkelijk schoon te houden en is de perfecte geleider voor de vloerverwarming, die ligt in de keuken en het eerste gedeelte van de woonkamer. De woonkamer bestaat uit twee delen: het eerste deel met de eettafel en een fijn leeshoekje, en het zitgedeelte, waar je twee treden lager komt. Dat hoogteverschil geeft een speels en ruimtelijk effect.
In het zitgedeelte hangen grote objecten aan het plafond. Twee grote infrarood diskussen als vervanging van de hier ontbrekende vloerverwarming. Deze ronde, bolvormige objecten verwarmen de hele ruimte en geven een prettige warmte. In de winter is de open haard natuurlijk ontzettend sfeervol.
Door het grote zijraam valt veel licht naar binnen. Het zitgedeelte is een aangename ruimte: veel licht, prachtig uitzicht, een speels schuin dak en best knus doordat je lager zit dan de rest van de woonverdieping. Door de tuindeur loop je naar buiten, waar je helemaal vrij zit. Over de sloot heen zie je alleen maar weiland – echt magisch. Het water geeft extra energie. De achtertuin is mooi aangelegd en verdeeld in een eetgedeelte, veel groen, en een deel aan het water waar je heerlijk rustig van de natuur geniet.
Via de zijtuin kun je ook de achtertuin bereiken. Voor extra privacy is daar een poort geplaatst.
De keuken
Terug in de woonkamer stappen we weer omhoog en lopen we naar voren, naar de keuken. Een prachtige keuken, helemaal passend bij dit huis. Uitgevoerd in een subtiele grijstint, met een strak roestvrijstalen blad waarin een inductiekookplaat mét grote wokbrander op gas is verwerkt – the best of both worlds!
Aan de woonkamerzijde zijn ruime lades, aan de keukenzijde idem dito. Verder vind je hier een vaatwasser, koelkast, combi-oven en een grote spoelbak met mengkraan en zeepdispenser. Door het kamerbrede raam aan de voorzijde komt lekker veel licht naar binnen en kijk je trots uit over je eigen voortuin. Bij het keukenraam is een screen geplaatst om de zon buiten te houden op warme zomerdagen.
Bijkeuken en berging
We lopen vanuit de hal naar voren, waar we in de bijkeuken komen. Hier is ruimte voor een extra koel-vriescombinatie, de wasmachine en de droger. Achter de volgende deur lopen we de berging in, waar de fietsen hun plek hebben. Hier is ook volop bergruimte voor andere spullen. In de zijtuin staat een extra berging voor onder andere het tuingereedschap, de parasol etc.
Eerste verdieping
Via de open trap in de woonkamer gaan we naar de eerste verdieping. Daar vinden we drie slaapkamers van respectievelijk 12, 8 en 6 m². De ouderslaapkamer aan de achterzijdezijde heeft een grote inbouwkast. De tweede slaapkamer aan de voorzijde is ook voorzien van een inbouwkast. De derde slaapkamer – aan de achterzijde – is perfect als kinder-, logeer- of werkkamer.
Aan de voorzijde bevindt zich de keurige badkamer. Deze is voorzien van een grote inloopdouche, een tweede toilet en een wastafel met meubel en mengkraan. Boven de wastafel hangt een spiegelkast met verlichting. Dankzij het grote bovenlicht, dat open kan, is de badkamer heerlijk licht.
Tweede verdieping
Dan lopen we door naar de tweede verdieping. Wow, deze ruimte van ruim 25 m² is ontzettend licht door de enorme ramen aan beide zijden. Je kijkt hier magnifiek uit over de weilanden – wat een plek! Een hele fijne atelierruimte. Er is een grote inbouwkast met schuifdeuren én een wasbakje met kraan, zodat je voor een glas water niet naar beneden hoeft. Vanuit deze kamer heb je via de vlizotrap nog toegang tot de vliering van ca. 18 m² (onder de 1,5 meter hoogte). De perfecte plek voor je kerstboom en andere spullen die je weinig gebruikt.
Is dit het licht dat je zoekt in je nieuwe huis? Het uitzicht, de tuin, én dan ook nog eens een écht ruim huis met vier slaapkamers? Dan zien we je graag – bel snel voor een afspraak!
De belangrijkste kenmerken:
– Bouwjaar: 1973
– Eigen grond
– Woonoppervlakte: ca. 139 m²
– Perceeloppervlakte: 231 m²
– Achtertuin (vanaf de poort): ca. 75 m², gelegen op het noordwesten
– Voortuin (tot de poort): ca. 64 m², gelegen op het zuidwesten
– Berging in de zijtuin voor tuingereedschap, de parasol etc.
– Energielabel A
– Volledig geïsoleerd
– 20 zonnepanelen
– Alle kamers aan de voorzijde zijn voorzien van elektrische screens (behalve de badkamer)
– Gevel in 2023 opnieuw gevoegd en gereinigd
– Verwarming en warm water via Nefit cv-ketel (2011, geoptimaliseerd in 2020)
– In de koopakte zal een ouderdomsclausule worden opgenomen
– Oplevering in overleg
Ons advies bij het kopen van uw nieuwe woning: neem uw eigen aankoopmakelaar mee.
RE/MAX – it’s the experience!